2-room flat new, ground floor, Vir

€ 299,500
2
48 m²
1
G

Note

Listing updated on 04/01/2026
Description

This description has been translated automatically and may not be accurate

reference: 40568

ZADAR, VIR - Luxurious apartment with garden and sea view in front of Jadro beach! CS1

ZADAR, VIR - Luxurious apartment with a garden and sea view in front of Jadro beach! CS1.

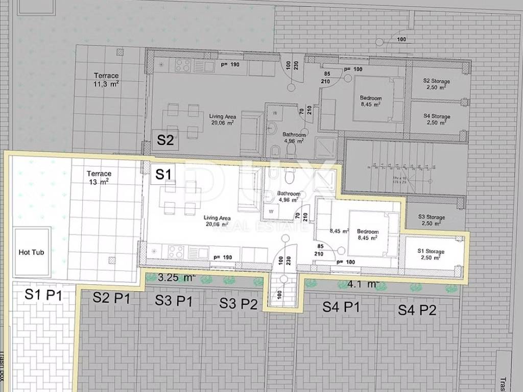
For sale are apartments in two modern buildings building B and building C located in one of the best locations on the island of Vir, right in front of the most famous and most visited Jadro beach. Building A, which is the first one by the sea, has been completely sold, and now you have the opportunity to secure your apartment in buildings B and C, just 45 meters from the beach. All apartments have a beautiful sea view and are carefully designed to provide maximum comfort, luxury and functionality throughout the year. The offer includes, among others, apartment CS1 on the ground floor of building C a one-bedroom apartment with its own garden, bathroom, living room, kitchen, storage room and its own parking space. Each apartment has its own storage room and private entrance, which provides an additional sense of privacy and comfort. The buildings are built to the highest standards reinforced concrete foundations and slabs, load-bearing walls made of 25 cm thick Porotherm Plan bricks, 1225 cm partition walls, additional sound insulation between apartments and rooms, and top-quality 10 cm thick Austrotherm EPS facade insulation with a silicone finish. Sound-absorbing cork underlay is used in the staircases, and two-layer sound insulation (Rockwool Steprock + AT-L 2) is laid on the interfloor slabs. Feal Thermo 85 aluminum joinery, windows and Thermo 150 sliding walls with triple-layer IZO glass are installed according to RAL standards. The apartments have aluminum roller shutters controlled via the Somfy TAHOMA system, solar protection glass on sunlit surfaces, mosquito nets on all windows, and Hörmann security entrance doors with an electric lock and the possibility of code locking. The interior doors are Hörmann Duradecor in an elegant brushed larch design. The floors are covered with Swiss Krono waterproof and extremely resistant wide parquet. The bathrooms and kitchens are decorated with large 60x120 cm ceramic tiles of modern design, with top-quality Grohe or Ideal Standard Cube fittings and walk-in shower cabins. The apartments are air-conditioned with Samsung Windfree units with Wi-Fi control, and are additionally equipped with Wi-Fi controlled electric underfloor heating in bathrooms and kitchens, Ariston Velis electric boilers, ventilation systems with air recovery in living rooms and kitchens, and preparation for electric radiators. The bathrooms have a modern cubic heated towel rail. The entire electrical installation includes top-quality outdoor lighting, pre-installation of an alarm via the TAHOMA system, LIVOLO glass switches and sockets, installed TV and internet networks in living rooms and bedrooms, as well as pre-installation of electric car chargers in parking spaces. The terraces are decorated with top-quality ceramics, artificial grass and decorative gravel, and the courtyards are decorated with ornamental plants. Private parking spaces are located within a fenced yard with automatic gates. Ambient lighting, mailboxes, waste bins, fences and gates separating private zones have been installed, and preparations for a jacuzzi with electrical and drainage connections have been made. The planned completion of construction is in the spring of 2026, and an additional advantage is that the seller is a legal entity - the buyer is exempt from paying real estate tax. Vir is one of the most visited Croatian islands, connected to the mainland by a bridge, ideal for family vacations, sports, recreation and enjoying nature. Jadro Beach, right in front of the buildings, is known for its crystal clear sea, well-maintained facilities for children and adults, and numerous restaurants and cafes by the sea. The city of Zadar, one of the most beautiful cities on the Adriatic, is only a 25-minute drive away and offers a rich cultural and gastronomic offer. For more information and sightseeing, feel free to contact us - this is an opportunity you do not want to miss.

Dear clients, the agency commission is charged in accordance with the General Business Conditions www.dux-nekretnine.hr/opci-uvjeti-poslovanja

ID CODE: 40568

Josip Šestan
Agent s licencom
Mob: +385 91 799 6986
Tel: +385 91 480 8808
E-mail: josip@dux-dalmacija.com
www.dux-dalmacija.com

Danijela Majdandžić
Agent s licencom
Mob: +385 98 979 1602
Tel: +385 91 480 8808
E-mail: danijela@dux-dalmacija.com
www.dux-dalmacija.com
If you want to know more, you can talk to Josip Šestan.
Features
Type
Apartment
Contract
Sale
Floor
Ground floor
Surface
48 m²
Rooms
2
Bedrooms
1
Bathrooms
1
Balcony
No
Terrace
No
Air conditioning
Independent, cold/hot
Price information
Price
€ 299,500
Price per m²
6,240 €/m²
Energy efficiency
  • Year of construction

    2025
  • Condition

    New / Under construction
  • Air conditioner

    Independent, cold/hot
  • Energy certification

    Exempt
Discover every corner of the property
+6
Additional options

Contact the advertiser

Or