3-room flat new, first floor, Tar-Vabriga

€ 352,350
3
78 m²
1
1
Yes

Note

Listing updated on 04/12/2026
Description

This description has been translated automatically and may not be accurate

reference: 40555

ISTRIA, TAR - Apartment in a new building in an excellent location

ISTRIA, TAR - Newly built apartment in an excellent location

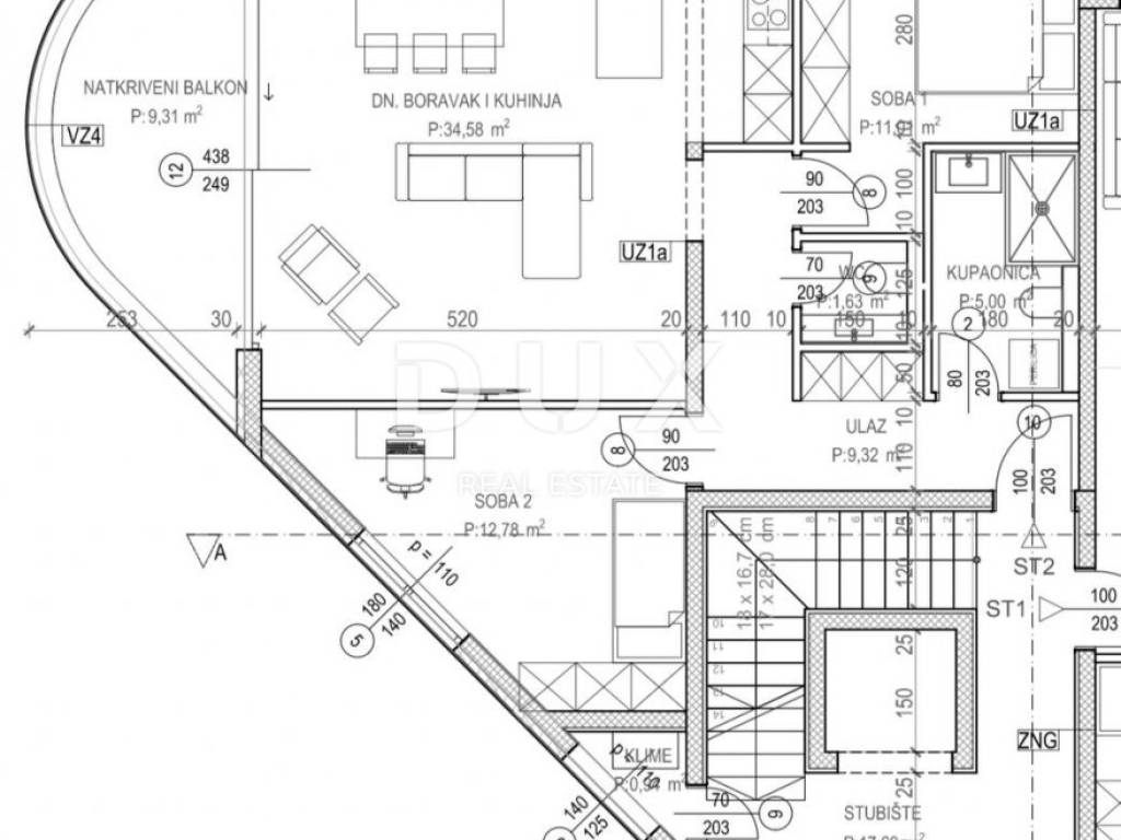
In the town of Tar, not far from Poreč, there is a modern newly built apartment that combines comfort, aesthetics and an ideal location for everyday life or a summer stay. As part of an urban business-residential building, which consists of six residential units and a business space on the ground floor, this apartment offers beautiful views of the sea and proximity to all important amenities - from kindergarten and school, to shops, cafes, pharmacies and restaurants. The beaches are only a few minutes' walk away. The 78.98 m apartment is designed in a functional and modern way and consists of an entrance area, an open-space living room with kitchen and dining room, two bedrooms, a bathroom, an additional toilet and a covered balcony that invites you to have your morning coffee with a view of the coast. Top-quality materials were used during construction, and the ceramics will be of the buyer's choice, which further adapts to personal preferences. Part of the standard equipment includes silent elevators, high-security security doors and video intercoms, ensuring a high level of comfort and security. Work on the building began in May 2025, and completion with the possibility of moving in is planned for the end of March 2027, which leaves enough time for organization, personalization and preparation of the future home. This property represents a perfect combination of modern construction, quiet but substantial location and quality living space - an ideal opportunity for those looking for a new chapter by the sea.

Dear clients, the agency commission is charged in accordance with the General Business Conditions: www.dux-nekretnine.hr/opci-uvjeti-poslovanja

ID CODE: 40555

DUX Pula
Mob: +385 91 480 8808
Tel: +385 51 518 174
E-mail: info@dux-istra.com
www.dux-istra.com
Features
Type
Apartment
Contract
Sale
Floor
1 floor
Lift
Yes
Surface
78 m²
Rooms
3
Bedrooms
2
Bathrooms
1
Balcony
No
Terrace
No
Air conditioning
Independent, cold/hot
Price information
Price
€ 352,350
Price per m²
4,517 €/m²
Energy efficiency
  • Year of construction

    2025
  • Condition

    New / Under construction
  • Air conditioner

    Independent, cold/hot
  • Energy certification

    Exempt
Additional options

Contact the advertiser

Or