3-room flat new, second floor, Centar, Pula

€ 208,000
3
54 m²
1
2
Yes

Note

Listing updated on 02/04/2026
Description

This description has been translated automatically and may not be accurate

reference: 34817

ISTRIA, PULA - New project! Top location!

ISTRIA, PULA - New project! Top location!

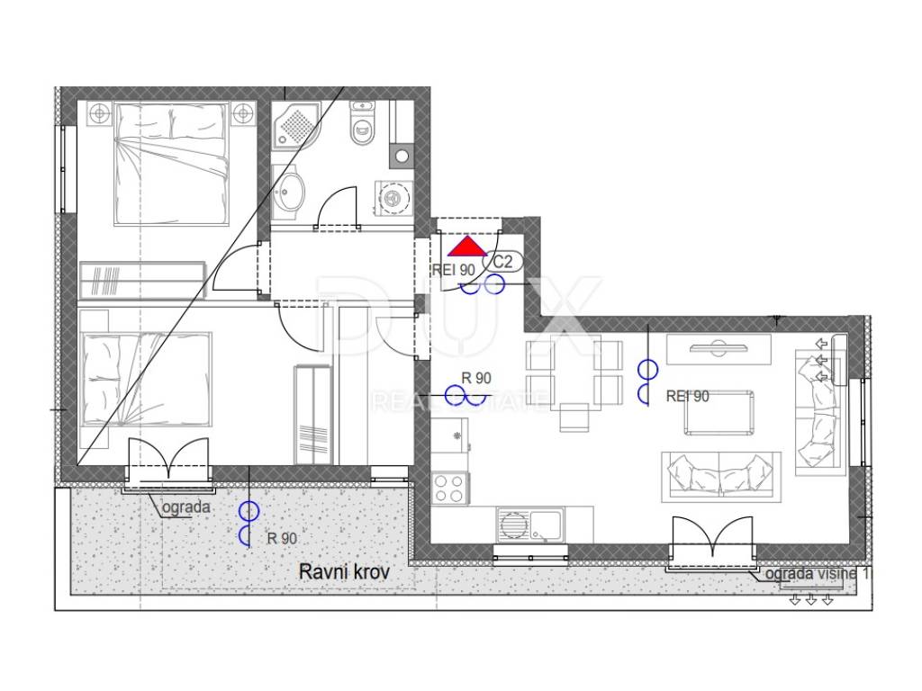
We mediate in the sale of apartments in this beautiful new building not far from the center of Pula! Modern building, 7 floors, 14 residential units. APARTMENT DESCRIPTION The apartment in question is located on the second floor of the building. It consists of an "open space" part in which there is a living room with an exit to the balcony and a kitchen with a dining room and a pantry. The space is illuminated by daylight that enters through the glass walls. The apartment also contains two spacious bedrooms and a bathroom. TECHNICAL DESCRIPTION - All apartments in the building are equipped with electric underfloor heating - Inverter air conditioners - Quality aluminum carpentry in anthracite gray color - 10 cm facade insulation - Quality ceramics - Projected completion date: August 2025 PARKING: Possibility to purchase covered or uncovered of parking space: - uncovered parking space: 14,000 - covered parking space: 22,000 LOCATION DESCRIPTION The building is located not far from the city center, just a few minutes' walk from the city market and Pula's Giardino. The immediate proximity to the city center and all other amenities such as a market, post office, bank, school, kindergarten, etc., makes this building extremely attractive and interesting. It is a really attractive project and an interesting property for all those who are looking for a place to start a new family life. For all questions, additional information and an appointment to view the property, contact your agent.

Dear clients, the agency commission is charged in accordance with the General Business Conditions: www.dux-nekretnine.hr/opci-uvjeti-poslovanja

ID CODE: 34817

Aldin Begić
Agent pripravnik
Mob: +385 95 391 9185
Tel: +385 91 480 8808
E-mail: aldin@dux-istra.com
www.dux-istra.com

Deniro Osmanović
Agent pripravnik
Mob: +385 99 371 3802
Tel: +385 91 480 8808
E-mail: deniro@dux-istra.com
www.dux-istra.com
If you want to know more, you can talk to Aldin Begić.
Features
Type
Apartment
Contract
Sale
Floor
2 floor
Lift
Yes
Surface
54 m²
Rooms
3
Bedrooms
2
Bathrooms
1
Balcony
No
Terrace
No
Air conditioning
Independent, cold/hot
Price information
Price
€ 208,000
Price per m²
3,852 €/m²
Energy efficiency
  • Year of construction

    2025
  • Condition

    New / Under construction
  • Air conditioner

    Independent, cold/hot
  • Energy certification

    Exempt
Additional options

Contact the advertiser

Or