map icon

Building land for Sale

Dobrinj
€ 269,000
863 m²

Note

Listing updated on 11/17/2025
Description

This description has been translated automatically and may not be accurate

reference: 30175

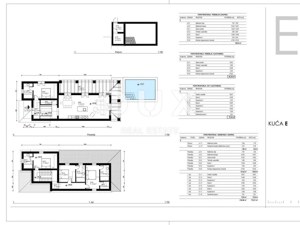
KRK ISLAND, TRIBULJE - building plot with project

KRK ISLAND, TRIBULJE - building plot with a project for a family house with a swimming pool and an auxiliary facility

Building plot of 863.99m2 for sale. Project for the construction of a detached house "E" with a swimming pool, a yard and an auxiliary building, which is divided into a ground floor and a first floor. On the ground floor of the house there is an open space living area with a kitchen and a dining room with access to a covered terrace, garden and swimming pool, and one bedroom with its own bathroom. On the first floor of the house, we have three more bedrooms, each with its own bathroom. The total square footage of the house is 179.24m2. The house has two parking spaces in the yard. The project is sold with a building permit, price on request, the possibility of an agreement with the seller on construction and sale in the turnkey phase.

Dear clients, the agency commission is charged in accordance with the General Terms and Conditions. www.dux-nekretnine.hr/opci-uvjeti-poslovanja

ID CODE: 30175

Darko Miculinić
Vanjski suradnik
Mob: +385 91 899 5705
Tel: +385 91 480 8808
E-mail: darko@dux-nekretnine.hr
www.dux-nekretnine.hr
If you want to know more, you can talk to Darko Miculinić.
Features
Contract
Sale
Type
Building land
Surface
863 m²
Price information
Price
€ 269,000
Price per m²
312 €/m²
Discover every corner of the property
+12
Advertiser
agency card
Additional options

Contact the advertiser

Or