map icon

Building land for Sale

Dobrinj
€ 338,000
870 m²

Note

Listing updated on 11/17/2025
Description

This description has been translated automatically and may not be accurate

reference: 30172

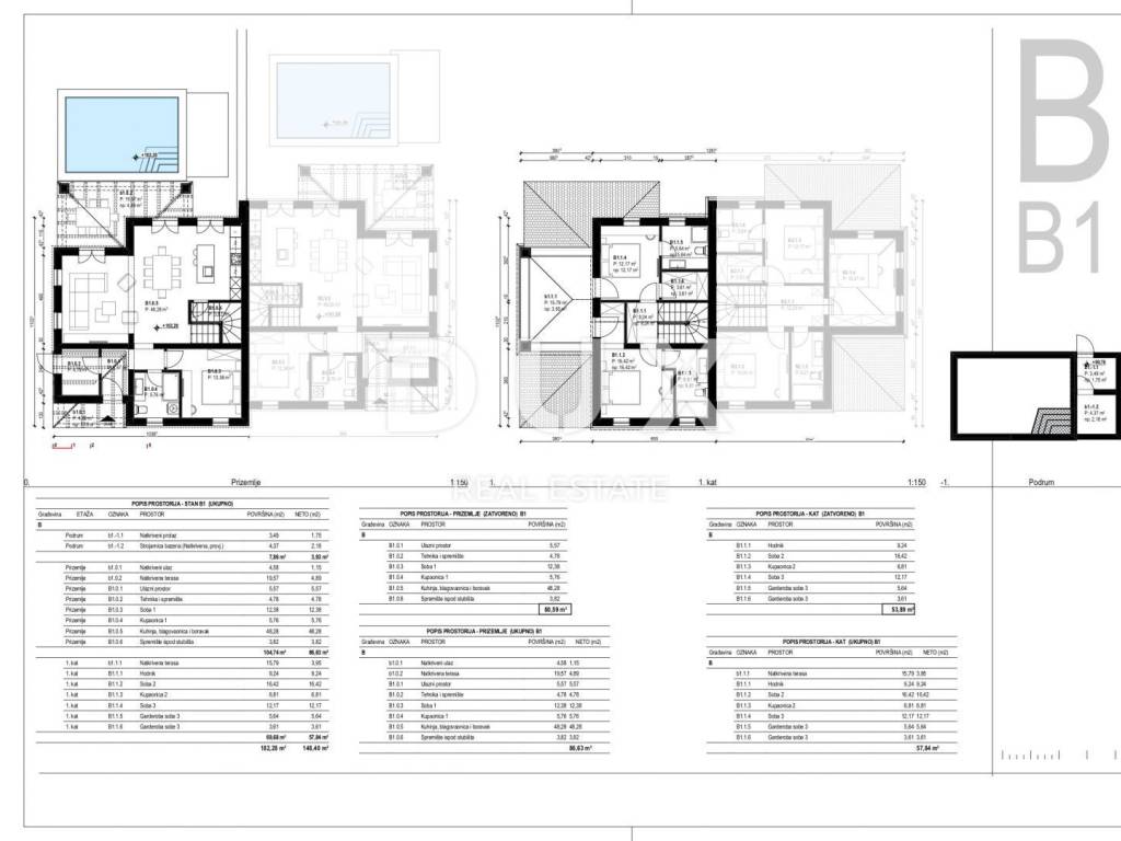
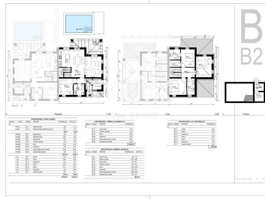
KRK ISLAND, TRIBULJE - building plot with project

KRK ISLAND, TRIBULJE - building plot with a project for the construction of a semi-detached family house with a swimming pool

A building plot of 1741.80m2 is for sale. Project for the construction of a semi-detached house "B", each with its own pool, garden and parking for two cars each, which is divided into a ground floor and a first floor. On the ground floor of the house "B1" we find an open space living area with a kitchen and a dining room with access to a covered terrace, a garden and a swimming pool, as well as one bedroom and a bathroom. On the first floor of the house, we have two more bedrooms, each with its own bathroom and dressing room, where both rooms share a covered terrace. The total square footage of each house is 185.72 m2. Each house has two parking spaces in the yard. The project is sold with a building permit, price on request, the possibility of an agreement with the seller on construction and sale in the turnkey phase.

Dear clients, the agency commission is charged in accordance with the General Terms and Conditions. www.dux-nekretnine.hr/opci-uvjeti-poslovanja

ID CODE: 30172

Darko Miculinić
Vanjski suradnik
Mob: +385 91 899 5705
Tel: +385 91 480 8808
E-mail: darko@dux-nekretnine.hr
www.dux-nekretnine.hr
If you want to know more, you can talk to Darko Miculinić.
Features
Contract
Sale
Type
Building land
Surface
870 m²
Price information
Price
€ 338,000
Price per m²
389 €/m²
Discover every corner of the property
+14
Advertiser
agency card
Additional options

Contact the advertiser

Or