Single-family detached house 145 m², Brtonigla

€ 495,000
3
145 m²
2
Terrace

Note

Listing updated on 02/04/2026
Description

This description has been translated automatically and may not be accurate

reference: 28528

ISTRIA, BRTONIGLA - Ground floor with swimming pool under construction

ISTRIA, BRTONIGLA - Ground floor with swimming pool under construction

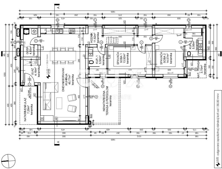
Brtonigla is a municipality that is rich in natural resources and is proud of its untouched nature. It includes the sea coast and the inland, green, Istria. A mild, Mediterranean climate prevails in the territory of the municipality, which enables a pleasant stay throughout the year. Most of the active population of the municipality is engaged in agriculture, and the primary products of high quality are wine, olives and olive oil, cheese, fish, truffles, meat, Istrian prosciutto, vegetables, unique fragrant and aromatic herbs. Another basic economic branch in the municipality is tourism. There is also the second best aquapark in Europe. Not far from Brtonigla, a detached house under construction is for sale. It is planned as a single-storey house with a total area of 145 m2, which will consist of an open-concept kitchen, dining room and living room, bathroom, 2 bedrooms, one of which will have its own bathroom. The living room will be oriented towards the 21 m2 swimming pool. Underfloor heating is provided with a heat pump, while air conditioners are provided for cooling. The area on which the building will be located is 502 m2. The price refers to a completely finished object, without furniture, with a landscaped garden. An ideal property for the life of a modern family or as a property for the purpose of tourist rental. Dear clients, the agency commission is charged in accordance with the General Business Conditions: www.dux-nekretnine.hr/opci-uvjeti-poslovanja

ID CODE: 28528

DUX Pula
Mob: +385 91 480 8808
Tel: +385 51 518 174
E-mail: info@dux-istra.com
www.dux-istra.com
Features
Type
Single-family detached house
Contract
Sale
Floor
1
Surface
145 m² | commercial 647 m²
Rooms
3
Bedrooms
2
Bathrooms
2
Balcony
No
Terrace
Yes
Air conditioning
Independent, cold/hot
Other features
  • Pool
Surface detail

Residential

Floor
1
Surface
145.0 m²
Coefficient
100%
Surface type
Main
Commercial area
145.0 m²

Land

Floor
Ground floor
Surface
502.0 m²
Coefficient
100%
Surface type
Accessory
Commercial area
502.0 m²
Price information
Price
€ 495,000
Price per m²
765 €/m²
Energy efficiency
  • Year of construction

    2025
  • Air conditioner

    Independent, cold/hot
  • Energy certification

    Exempt
Discover every corner of the property
+2
Additional options

Contact the advertiser

Or