1/9


Single-family detached house 135 m², new, Luka, Poreč
€ 465,000
Listing updated on 02/17/2026
Description
reference: 20919
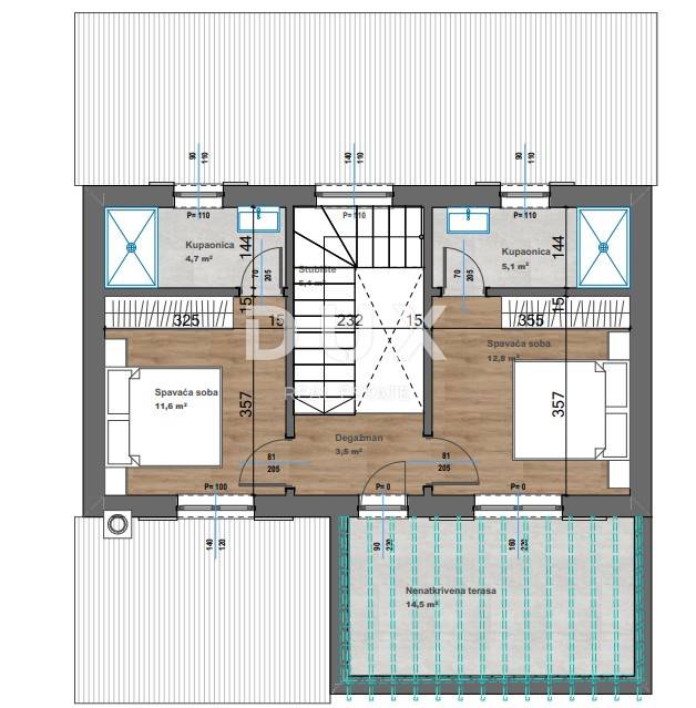
House Poreč, 135m2
ID CODE: 20919
Stefani Kapel
Agent s licencom
Mob: +385 92 106 5592
Tel: +385 91 480 8808
E-mail: stefani@dux-istra.com
www.dux-istra.com
Features
- Type
- Single-family detached house
- Contract
- Sale
- Floor
- 1
- Surface
- 135 m² | commercial 688 m²
- Rooms
- 4
- Bedrooms
- 3
- Bathrooms
- 1
- Balcony
- No
- Terrace
- No
Other features
Surface detail
Residential
- Floor
- 1
- Surface
- 135.0 m²
- Coefficient
- 100%
- Surface type
- Main
- Commercial area
- 135.0 m²
Land
- Floor
- Ground floor
- Surface
- 553.0 m²
- Coefficient
- 100%
- Surface type
- Accessory
- Commercial area
- 553.0 m²
Price information
- Price
- € 465,000
- Price per m²
- 676 €/m²
Energy efficiency
Year of construction
2024Condition
New / Under constructionEnergy certification
Exempt
Discover every corner of the property
Additional options