Single-family detached house 230 m², new, Luka, Poreč

€ 1,400,000
5
230 m²
3+
Terrace

Note

Listing updated on 02/04/2026
Description

This description has been translated automatically and may not be accurate

reference: 10680

ISTRIA, POREČ - Exclusive villa with modern rustic design

ISTRIA, POREČ - Exclusive villa with modern rustic design

Bathed in a pleasant Mediterranean climate, located in the heart of the western Istrian coast, the ancient town of Poreč and its coastline of preserved natural beauty, landscaped parks, pine and oak groves that reach the sea itself, along which clear sea, beaches, bays and islands are spread over area of 139 km and consists of 58 settlements. With the identity of an urban coastal city, Poreč is a city of culture, sports, entertainment, tourism and genuine hospitality. One of the most attractive cities of Croatian tourism that uniquely combines the natural beauty of Istria, rich cultural and historical heritage and the most modern amenities of a top tourist destination. The harmony of the old town core, which is a cultural monument, with one of the most famous Istrian cultural monuments, the Euphrasian Basilica, which is on the UNESCO World Heritage List, and the most organized and best equipped tourist resorts on the Adriatic forms a mosaic of unforgettable experiences.
Poreč is also a city that is much more than a summer destination of sun and sea. Poreč is a city tailored to man. A city where there is a constant impulse for better living conditions and greater progress in various spheres. A city that is a pleasant, safe and well-organized place to live where everyone can find their place, a city without surcharges with high social sensitivity for all generations.

In the vicinity of the city of Poreč, an exclusive villa with a modern rustic design is for sale.
Located in an idyllic settlement, it was designed respecting the profession, legal regulations and spatial planning documentation and was built according to the highest standards for residential construction.
With its tame architecture, it does not disturb the environment, but creates a synergy of the natural environment, traditional Istrian architecture and modern design.
Design simplicity resulted in the creation of a compact floor plan and a pleasant airy space. It was conceived as one residential unit that extends over two floors with a modern interior that exudes elegance and simplicity and provides a high level of comfort.
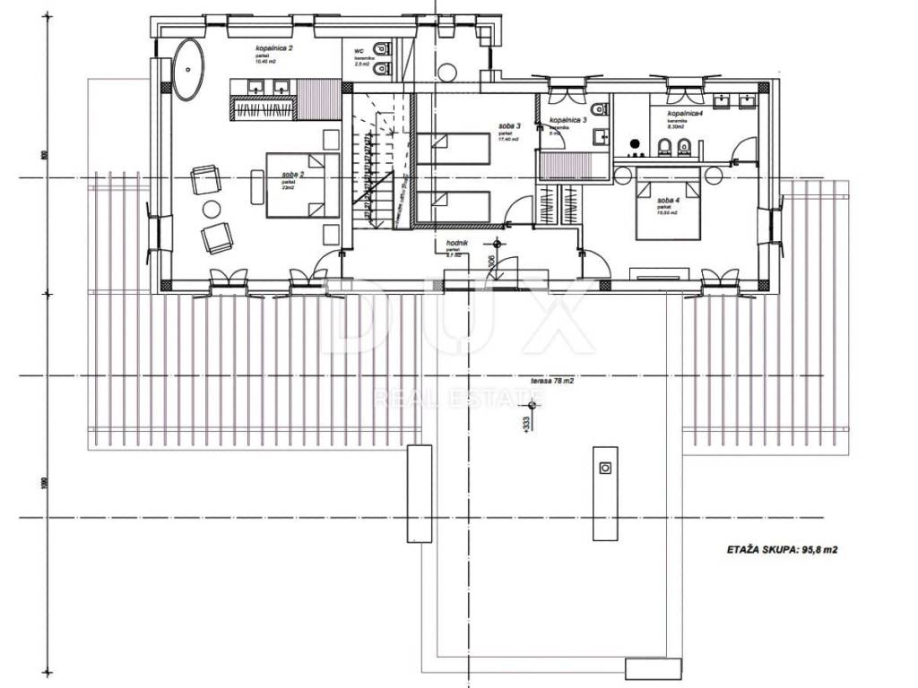
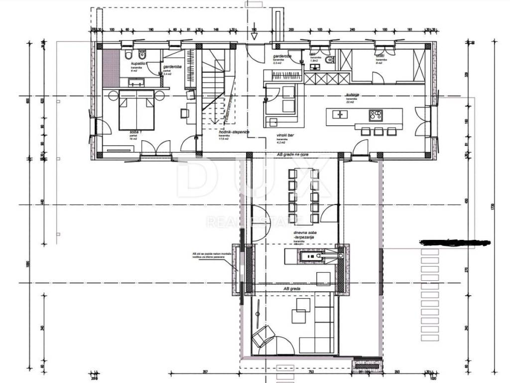
The ground floor consists of an open concept space that unites the living room, dining room and kitchen with access to a terrace covered with a pergola. The floor plan of the ground floor is complemented by a bedroom with its own bathroom, a guest toilet, a laundry room, a technical room, a storage room and a hallway. Upstairs there are three bedrooms with their own bathrooms, and the master bedroom has access to its own balcony. The entrance hall has access to a partially covered spacious terrace of 78 m with a hot tub and a view of the sea and the surrounding area.
The yard is completely fenced and elegantly decorated with grassy areas and Mediterranean plants. The central place is occupied by a pool of 50 m with salt water. The yard also contains a summer kitchen of 42 m with a toilet and a covered parking lot with a storage area of 60 m.

This perfectly integrated property is an exceptional opportunity for a comfortable family life as well as an investment investment in the tourist rental business.

Dear clients, the agency commission is charged in accordance with the General Terms and Conditions:
www.dux-nekretnine.hr/opci-uvjeti-poslovanja

ID CODE: 10680

Iva Zajc
Agent s licencom
Mob: +385 92 235 9472
Tel: +385 91 480 8808
E-mail: iva@dux-istra.com
www.dux-istra.com
If you want to know more, you can talk to Iva Zajc.
Features
Type
Single-family detached house
Contract
Sale
Floor
1
Surface
230 m² | commercial 1,730 m²
Rooms
5
Bedrooms
4
Bathrooms
3+
Balcony
No
Terrace
Yes
Air conditioning
Independent, cold/hot
Other features
  • Pool
Surface detail

Residential

Floor
1
Surface
230.0 m²
Coefficient
100%
Surface type
Main
Commercial area
230.0 m²

Land

Floor
Ground floor
Surface
1,500.0 m²
Coefficient
100%
Surface type
Accessory
Commercial area
1,500.0 m²
Price information
Price
€ 1,400,000
Price per m²
809 €/m²
Energy efficiency

Energy consumption

A+

Discover every corner of the property
+12
Additional options

Contact the advertiser

Or