1/6


4-room flat new, Veli Vrh - Industrijska zona, Pula
€ 365,000
Listing updated on 02/04/2026
Description
reference: 7561
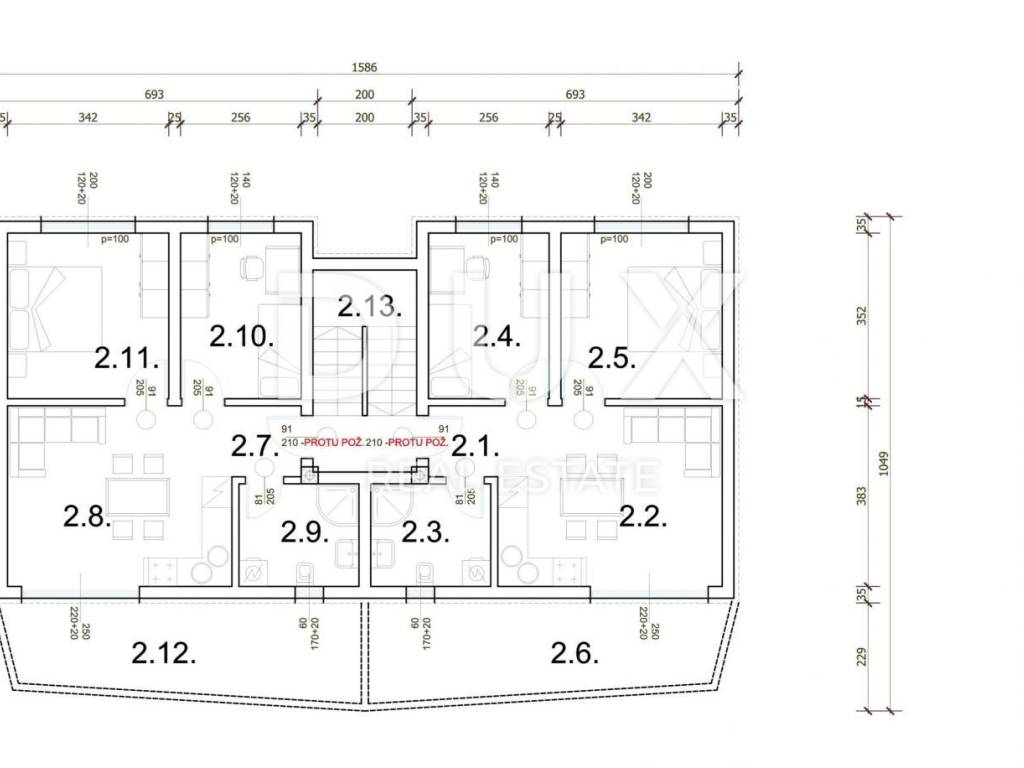
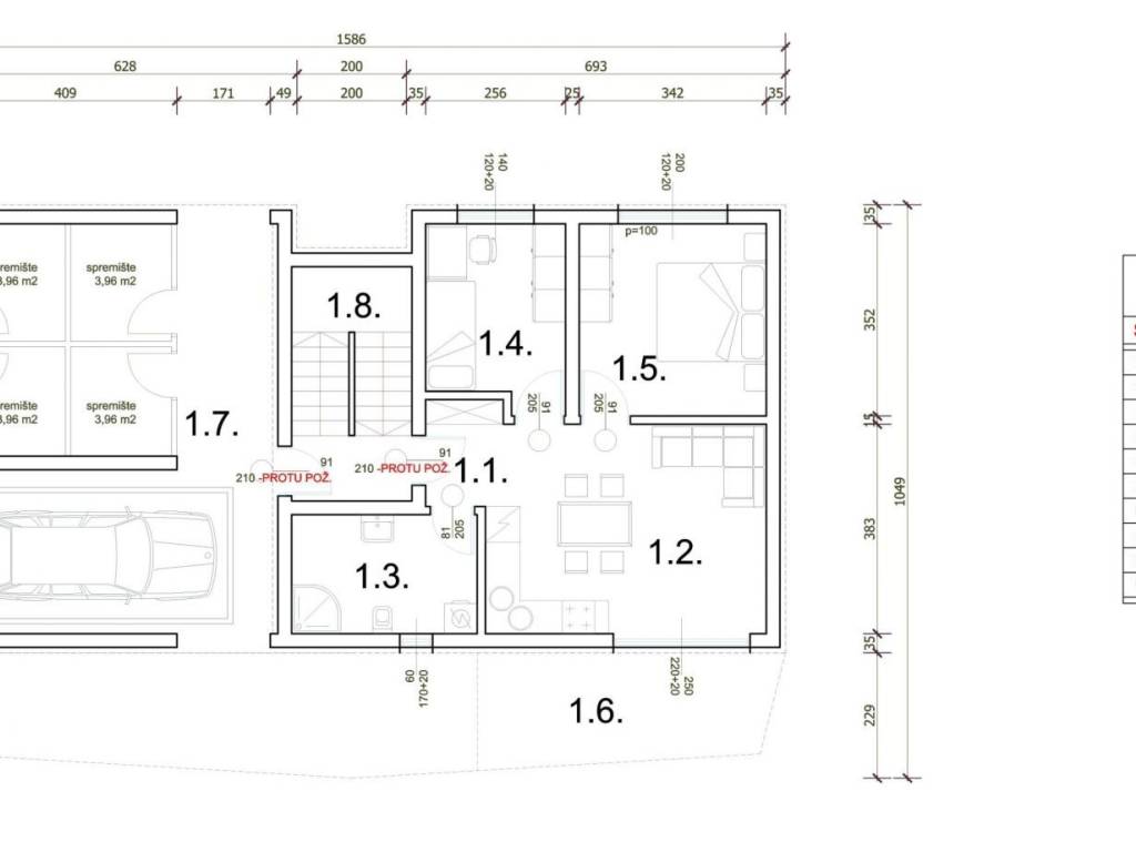
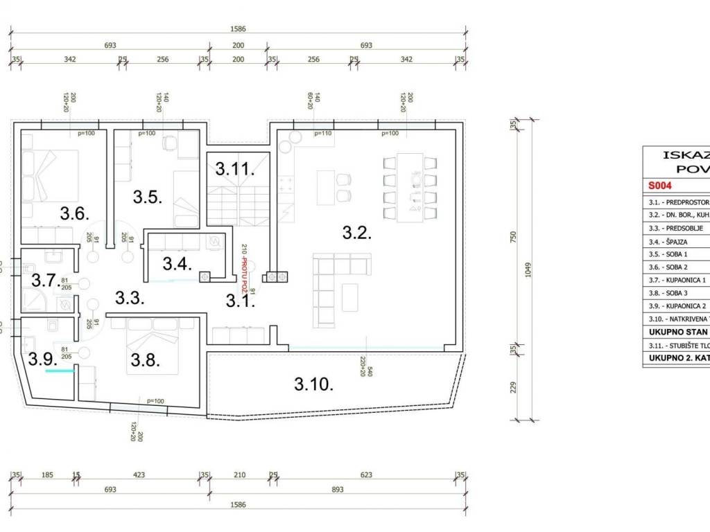
Apartment Veli vrh, Pula, 116,29m2
ID CODE: 7561
Ana Glavaš
Agent s licencom
Mob: +385 97 757 1657
Tel: +385 91 480 8808
E-mail: ana@dux-istra.com
www.dux-istra.com
Features
- Type
- Apartment
- Contract
- Sale
- Surface
- 116 m²
- Rooms
- 4
- Bedrooms
- 3
- Bathrooms
- 2
- Balcony
- No
- Terrace
- Yes
- Air conditioning
- Independent, cold/hot
Price information
- Price
- € 365,000
- Price per m²
- 3,147 €/m²
Energy efficiency
Condition
New / Under constructionAir conditioner
Independent, cold/hotEnergy certification
Exempt
Discover every corner of the property
Additional options