Hotel for Sale

€ 625,000
No
600 m²
3+

Note

Listing updated on 12/23/2025
Description

This description has been translated automatically and may not be accurate

reference: 2174

The town of Pazin is located in the heart of the Istrian peninsula and is rich in natural resources, and every year it offers an increasing number of events and is the center of cultural, sports, educational, economic and entertainment life with an increasing number of tourists.

Right in a small settlement, only 5 km from Pazin, there is this beautiful estate with antiques of an enviable surface, next to which there is a construction plot of approx. 4,000 m2 and an extremely spacious agricultural plot of 15,400 m2, which together represents an exceptional complex of estates with high potential . The proposal includes a project for the adaptation of antiques, as well as a building permit and paid utilities. The properties have electricity and water meters.

By changing the project, a hotel can be built which, with a spacious plot of land, could meet different criteria according to the customer's wishes in terms of space for accompanying hotel content, whether swimming pools, playgrounds, sports fields or the like.

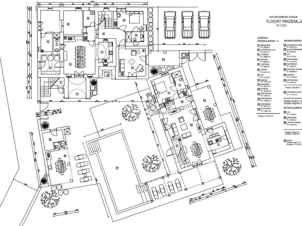
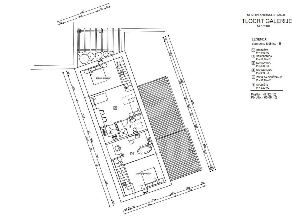
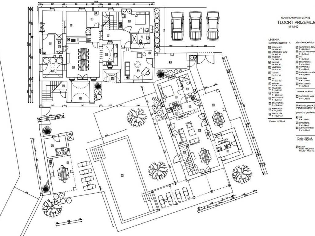
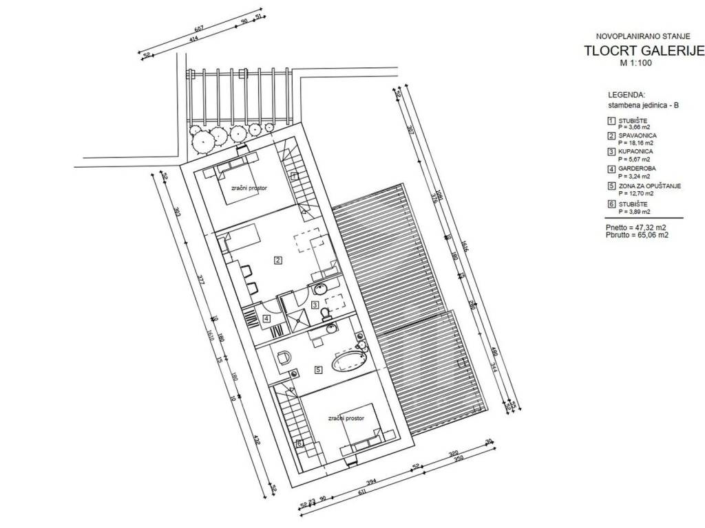
The current project includes: The ground floor of the building where there is a covered entrance, two kitchens, a tavern, a storage room, a wine cellar, two toilets, two bathrooms, a laundry room, a fitness room, a boiler room, a living room with a dining room, two bedrooms with an auxiliary building that would be a summer kitchen with a storage room and toilet. The first floor would consist of a hall, a living room with a dining room, a kitchen, a space with a fireplace, a covered terrace, a terrace with a patio, six bedrooms, one toilet, four bathrooms. In the attic of the property, there would be a gallery that would consist of a staircase, a bedroom, a bathroom, a dressing room, and a relaxation area.

The property is worthy of attention and very interesting considering its area of buildings, area of construction and agricultural land, quiet location and the possibility of engaging in various activities in terms of tourism, hospitality and hotel construction with all the accompanying content, as well as the possibility of a family farm (OPG), etc.

FOR ALL OTHER INFORMATION, CALL AT:

+385981748680

dean.zunic@family-nekretnine.hr

Dean Žunić

Licensed agent
Features
Contract
Sale
Type
Commercial activity | Without walls
Surface
600 m²
Rooms
3+ bathrooms
Price information
Price
€ 625,000
Price per m²
1,042 €/m²
Energy efficiency
  • Air conditioner

    Cold/hot
Discover every corner of the property
+11
Additional options

Contact the advertiser

Or