map icon

Building land for Sale

Klis
€ 320,000
747 m²

Note

Listing updated on 05/03/2026
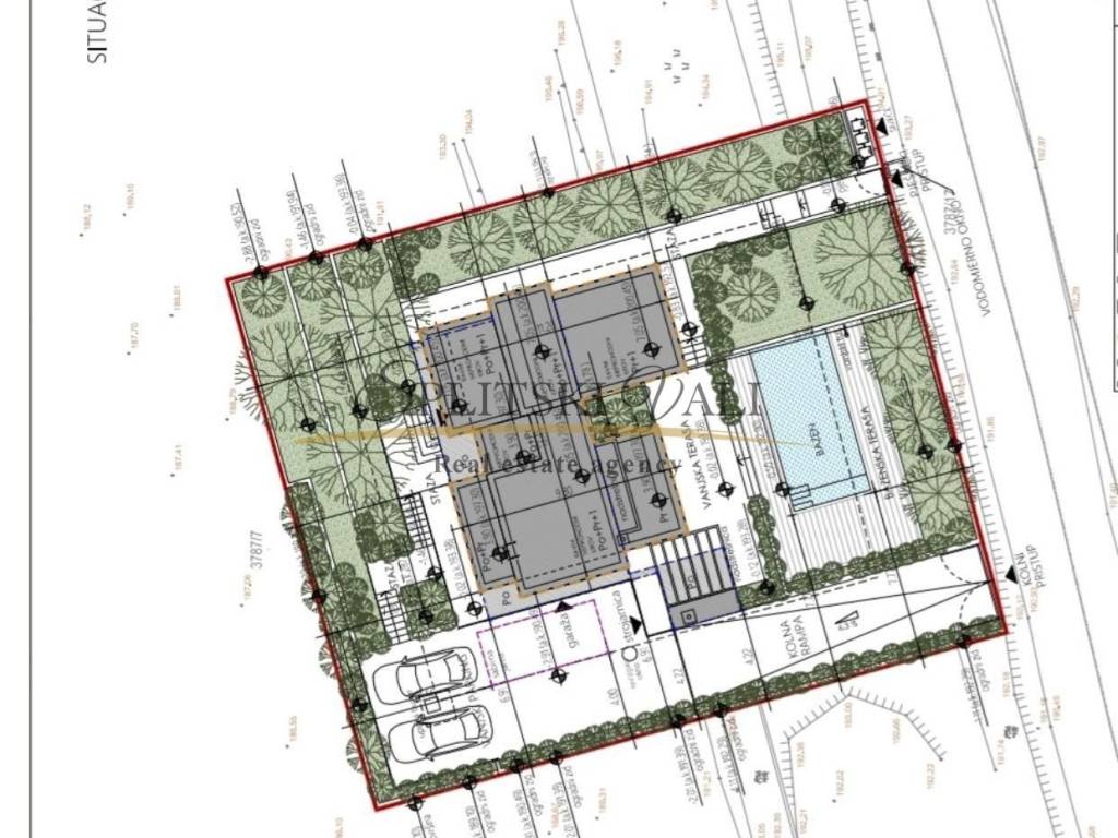
Description

reference: 1869

Ekskluzivno posredujemo u prodaji građevinskog zemljišta s pravomoćnom građevinskom dozvolom.
Projekt s prekrasnim pogledom na more na idealnoj lokaciji.
Za sve dodatne upite nazovite na broj 095 335 5426-Neda
If you want to know more, you can talk to Neda Buovac.
Features
Contract
Sale
Type
Building land
Surface
747 m²
Price information
Price
€ 320,000
Price per m²
428 €/m²
Discover every corner of the property
+13
Additional options

Contact the advertiser

Or