2-room flat new, first floor, Centar, Luka, Finida, Umag

€ 303,500
2
70 m²
1
1
No

Note

Listing updated on 12/23/2025
Description

This description has been translated automatically and may not be accurate

reference: 45

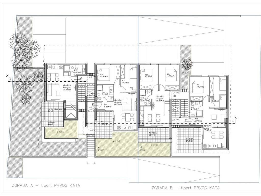
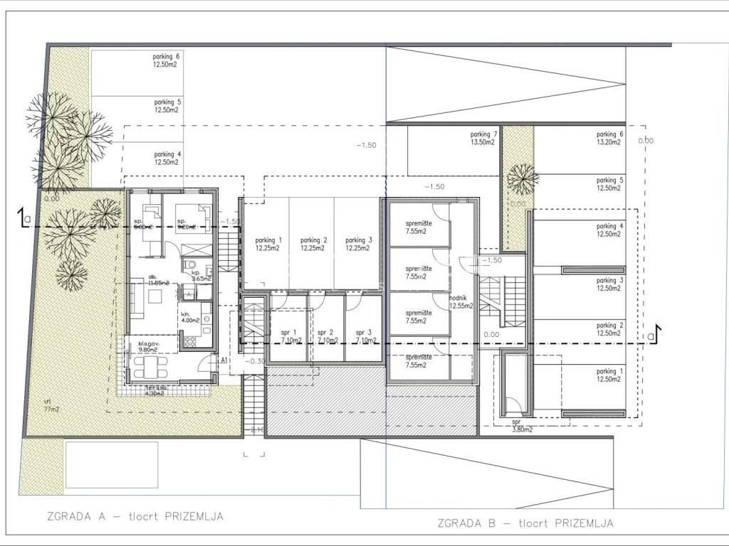
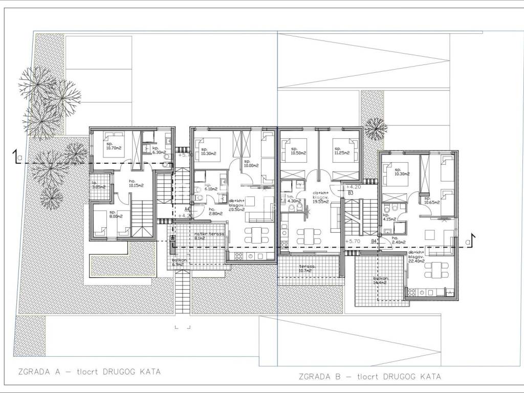
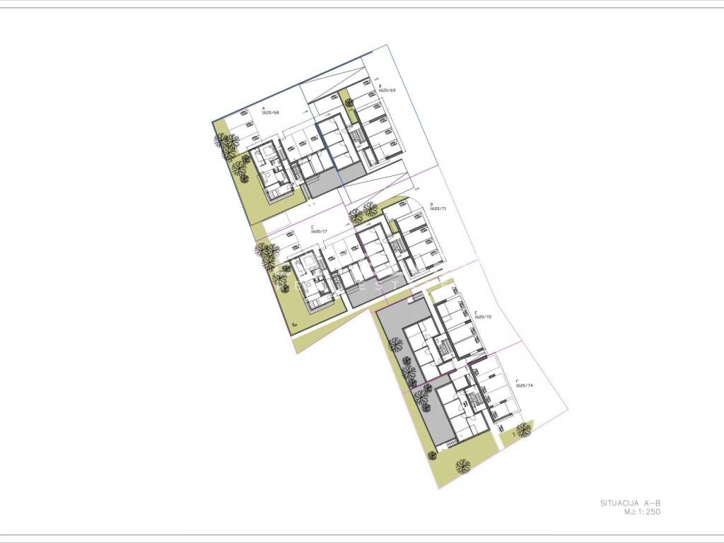
Apartment under construction located in a small building with four residential units in the settlement of Lovrečica (part of a project consisting of a total of 6 buildings with the same number of units). The property is situated just 300 meters away from the sea and the organized beach in an excellent location, only a few minutes' drive from Umag and Novigrad. Air conditioning units are provided for heating and cooling in all apartments. Considering the specificity and demand of the micro-location, the apartment has great potential for tourist rental.
Features
Type
Apartment
Contract
Sale
Floor
1 floor
Building floors
1
Lift
No
Surface
70 m²
Rooms
2
Bathrooms
1
Furnished
No
Garage, car parking
1 parking space
Air conditioning
Cold/hot
Price information
Price
€ 303,500
Price per m²
4,336 €/m²
Energy efficiency
  • Year of construction

    2024
  • Condition

    New / Under construction
  • Air conditioner

    Cold/hot
  • Energy certification

    Exempt
Discover every corner of the property
+9
Additional options

Contact the advertiser

Or