Single-family detached house 172 m², new, Centar, Luka, Finida, Umag

€ 270,000
3
172 m²
3+
No

Note

Listing updated on 12/23/2025
Description

This description has been translated automatically and may not be accurate

reference: 120

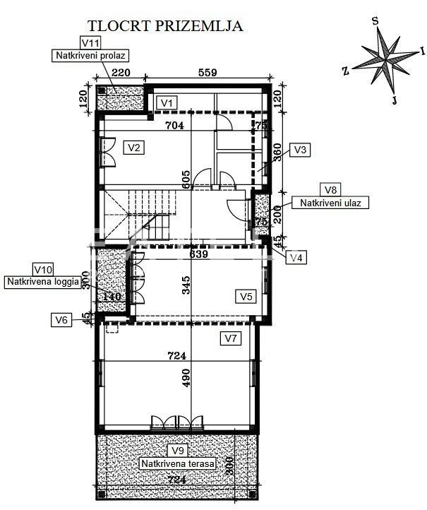
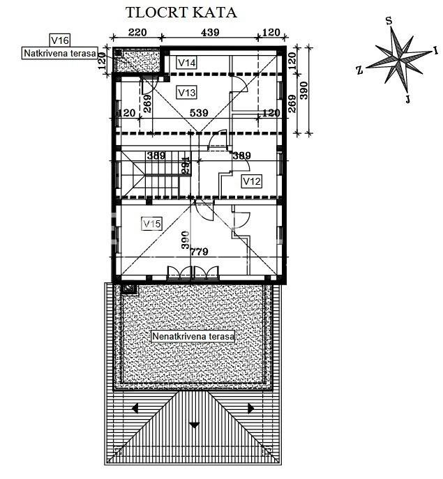
For sale, a family house under construction (price for Roh-bau state), with a net area of 172 m, located on the outskirts of Umag in an idyllic setting surrounded by greenery, offering an open view of the Alps. The house features 3 bedrooms, each with its own bathroom. It is equipped with utilities (water and electricity connected). The border with Slovenia is just 5 kilometers away. A rare opportunity on the market, excellent investment!
Features
Type
Single-family detached house
Contract
Sale
Floor
1
Building floors
2
Lift
No
Surface
172 m² | commercial 842 m²
Rooms
3
Bedrooms
3
Bathrooms
3+
Furnished
No
Air conditioning
Cold/hot
Surface detail

Residential

Floor
1
Surface
172.0 m²
Coefficient
100%
Surface type
Main
Commercial area
172.0 m²

Land

Floor
Ground floor
Surface
670.0 m²
Coefficient
100%
Surface type
Accessory
Commercial area
670.0 m²
Price information
Price
€ 270,000
Price per m²
321 €/m²
Energy efficiency
  • Year of construction

    2025
  • Condition

    New / Under construction
  • Air conditioner

    Cold/hot
  • Energy certification

    Exempt
Discover every corner of the property
+5
Additional options

Contact the advertiser

Or