Office for Sale

€ 1,560,000
464 m²
G

Note

Listing updated on 03/03/2026
Description

reference: EUROVILLA-541995

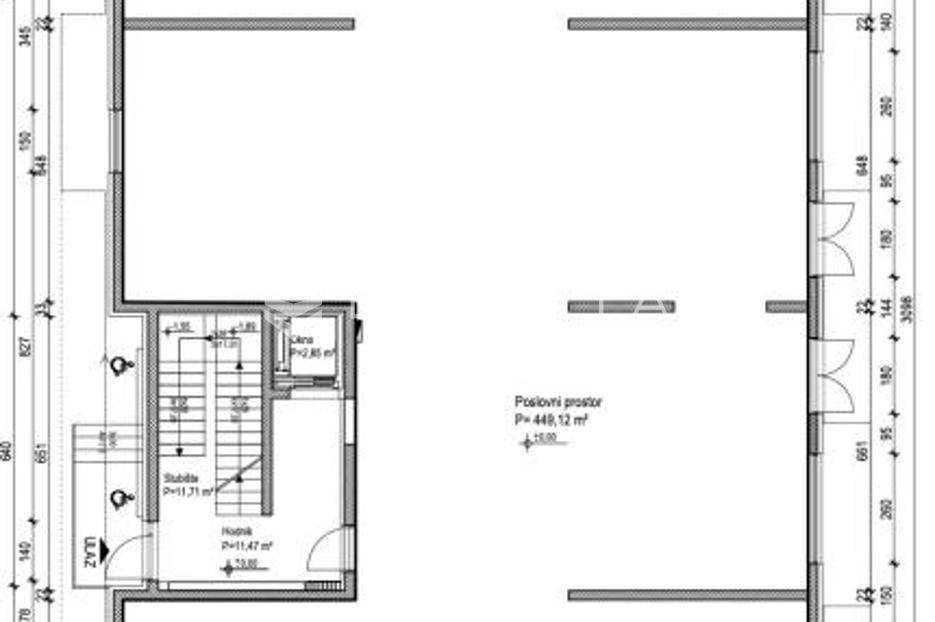
Zagreb, Jankomir, ulični poslovni prostor, NKP 449 m2 + dvorište u novogradnji na atraktivnoj lokaciji na Jankomiru.Karakteriziraju ga velike staklene stijene, vrhunska alu stolarija, visoki stropovi (4,15 m2). Prodaje se u roh bau stanju no postoji mogućnost prilagodbe prostora potrebama kupca. Pripada mu dvorište od 150 m2 (potencijalno parkirna mjesta). Mogućnost kupnje dodatnih vanjskih i unutarnjih garažnih parkirnih mjesta.Nalazi se na odličnoj lokaciji u blizini Samoborske ceste te poslovnog okruženja.Predviđeni završetak je rujan 2026.godineZa dodatna pitanja stojimo na raspolaganju.... Više na eurovilla.hr, ID: 541995
If you want to know more, you can talk to Sarah Ivanković.
Features
Contract
Sale
Type
Office
Surface
464 m²
Floor
Ground floor
Surface detail

Other

Floor
Ground floor
Surface
464.0 m²
Coefficient
100%
Surface type
Main
Commercial area
464.0 m²
Price information
Price
€ 1,560,000
Price per m²
3,362 €/m²
Advertiser
agent male

Sarah Ivanković

agency card
Additional options

Contact the advertiser

Or
agent male

Sarah Ivanković