Apartment new, ground floor, Rovinj

€ 1,089,000
5+
1 m²
3+
G
Yes

Note

Listing updated on 11/26/2025
Description

This description has been translated automatically and may not be accurate

reference: RE52837

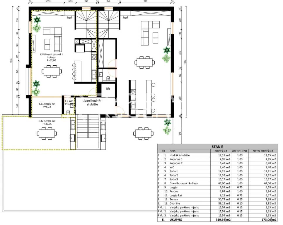
Istria, Rovinj – Modern three-room apartment under construction 181 m2

In the unique Rovinj, in a residential building under construction, there is a modern three-room apartment of 181 m2. The apartment consists of: a hallway, two bathrooms, a laundry room, a toilet, three bedrooms, a bathroom, a living room with a kitchen and dining room, a loggia, a loggia on the floor, a terrace, a garage parking space, a storage room and a boiler room, a yard and three outdoor parking spaces. The building and apartments are built in such a way as to meet energy class A. Vertical communication within the building is ensured by a spacious staircase and elevator, the corridors are illuminated by natural light and equipped with evacuation lighting. The apartments are equipped with separate heating systems (heat pumps via underfloor heating in all rooms) and an inverter air conditioning system (cooling and heating via wall or parapet air conditioning units) with the possibility of control via a mobile application. The floor surfaces in the sanitary facilities are covered with ceramics, while parquet flooring is planned in the other rooms. 1st class or ceramics. Anti-burglary and fire doors. Alarm system with smoke detector and internal and external siren, video surveillance of the garden. The apartments are equipped with a bell with video intercom, and the yard and garage doors have remote control. The apartment is located in an excellent location in Rovinj, near the sea and all essential amenities.
Features
Type
Apartment
Contract
Sale
Floor
Ground floor
Lift
Yes
Surface
1 m²
Rooms
5+
Bedrooms
3
Bathrooms
3+
Terrace
No
Other features
  • Pool
Price information
Price
€ 1,089,000
Price per m²
1,089,000 €/m²
Energy efficiency
  • Condition

    New / Under construction
  • Energy certification

    Waiting for certification
Floorplan
Screenshot 2023-10-20 at 13.57.00
Discover every corner of the property
+3
Additional options

Contact the advertiser

Or