3-room flat second floor, Diklo - Puntamika, Zadar

€ 441,570
3
94 m²
1
2

Note

Listing updated on 03/12/2026
Description

reference: 196

ZADAR, DIKLO, STAN NA DRUGOM KATU S VELIKOM KROVNOM TERASOM, NOVOGRADNJA, 2025 G.
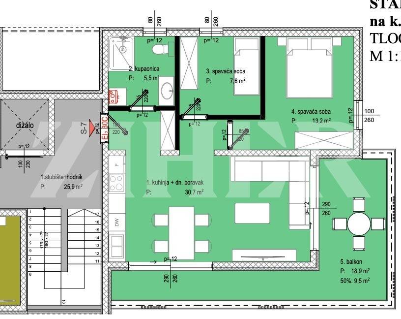
Prodaje se stan na drugom, zadnjem katu, kojem pripada velika krovna terasa, dva parkirna mjesta i spremište površine 5,30 m2.
Stan se sastoji od ulaznog hodnika, dnevnog boravka s kuhinjom i blagavaonicom, dvije spavaće sobe i kupaonice, ukupne površine 57,04 m2.
Iz dnevnog boravka se izlazi na balkon od 19 m2, a stepenicama se izlazi na krovnu terasu površine 81 m2.
Odlična lokacija, 50 m od mora, samo par minuta od centra Zadra.
Za sve informacije nazovite 098359876
ZIHER
Agencija za posredovanje u prometu nekretninama
Features
Type
Apartment
Contract
Sale
Floor
2 floor
Building floors
2
Surface
94 m²
Rooms
3
Bedrooms
2
Bathrooms
1
Heating
Independent, air heating, power supply
Air conditioning
Independent, cold/hot
Price information
Price
€ 441,570
Price per m²
4,698 €/m²
Detail of costs
Condominium fees
No condominium fees
Energy efficiency
  • Year of construction

    2025
  • Heating

    Independent, air heating, power supply
  • Air conditioner

    Independent, cold/hot
  • Energy certification

    Not classifiable
Discover every corner of the property
+9
Additional options

Contact the advertiser

Or