Single family villa Kamenar, Primošten

€ 2,650,000
5
559 m²
Balcony
Terrace

Note

Listing updated on 03/03/2026
Description

reference: EUROVILLA-368228

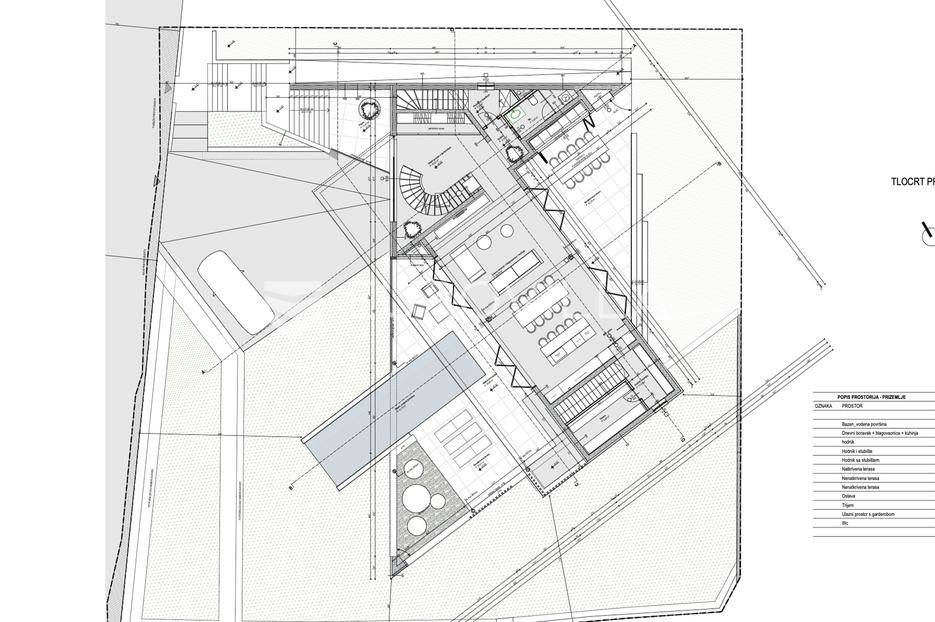
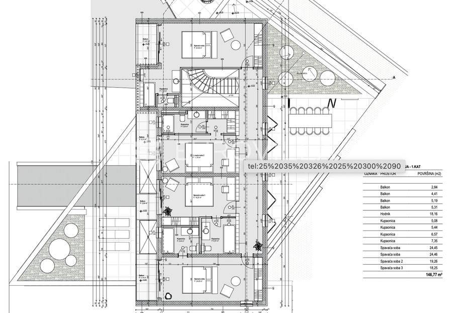
Predstavljamo ekskluzivnu, arhitektonski impresivnu vilu s infinity bazenom i panoramskim pogledom na more, ukupne površine 559,97 m².Zatvorena površina vile iznosi 379,58 m², raspoređenih na tri etaže, dizajniranih za maksimalan komfor i privatnost.U suterenu se nalazi prostrana garaža s dva parkirna mjesta, te dodatni funkcionalni prostori - strojarnica, ostava i kotlovnica. Na istoj etaži smješten je i zaseban studio apartman s vlastitom terasom, idealan za goste ili osoblje.Unutarnjim stepeništem dolazi se do prizemlja, koje se otvara u raskošnu dnevnu zonu - prostrani dnevni boravak povezan s blagovaonicom i modernom kuhinjom, uz dodatnu ostavu i gostinjski toalet. Velike staklene stijene omogućuju obilje prirodnog svjetla i izravan izlaz na velike terase: na jednoj se nalazi spektakularan infinity bazen s prostorom za sunčanje, dok je druga opremljena ljetnom kuhinjom i roštiljem - savršeno za druženja i opuštanje.Na katu se nalaze četiri elegantne spavaće sobe, svaka s privatnom kupaonicom i izlazom na balkon s pogledom na more, što pruža osjećaj ekskluzivnosti i potpunog mira.Vila je izgrađena s naglaskom na vrhunske materijale, suvremenu arhitekturu i napredne pametne sustave upravljanja, kako bi pružila najvišu razinu funkcionalnosti, sigurnosti i estetike.Ovaj dom omogućuje iznimnu razinu privatnosti, komfora i prestiža, te je koncipiran da zadovolji najzahtjevnije kriterije modernog stanovanja. Smještena u ambijentu netaknute prirode, okružena maslinicima i vinogradima, vila nudi potpuni mir, dok je istodobno tek nekoliko minuta hoda od centra Primoštena.Za dodatne informacije ili dogovor razgledavanja, rado stojimo na raspolaganju.... Više na eurovilla.hr, ID: 368228
If you want to know more, you can talk to Domagoj Matić.
Features
Type
Single family villa
Contract
Sale
Floor
Ground floor
Surface
559 m²
Rooms
5
Bedrooms
5
Balcony
Yes
Terrace
Yes
Surface detail

Residential

Floor
Ground floor
Surface
560.0 m²
Coefficient
100%
Surface type
Main
Commercial area
560.0 m²
Price information
Price
€ 2,650,000
Price per m²
4,741 €/m²
Energy efficiency
  • Condition

    New / Under construction
  • Energy certification

    Exempt
Discover every corner of the property
+58
Advertiser
agent male

Domagoj Matić

agency card
Additional options

Contact the advertiser

Or
agent male

Domagoj Matić