1/3


Piso de tres habitaciones Bobovica, Samobor - Okolica, Samobor
€ 280.945
Anuncio actualizado el 28/01/2026
Descripción
referencia: 340
ID CODE: 340
Petra Cvitić
Suradnik u procesu obuke
Mob: 095 395 2930
E-mail: petra@gsnekretnine.hr
www.gsnekretnine.hr
Características
- Tipología
- Piso
- Contrato
- Venta
- Planta
- 1 planta
- Plantas del edificio
- 3
- Ascensor
- No
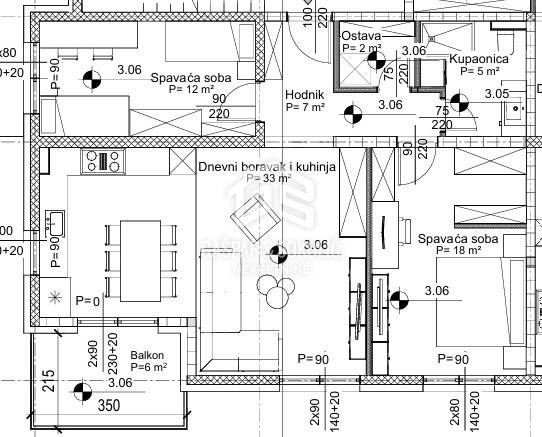
- Superficie
- 80 m²
- Habitaciones
- 3
- Dormitorios
- 2
- Baños
- 1
- Balcón
- Sí
- Terraza
- No
- Garaje, plazas de aparcamiento
- 1 en garaje privado
- Aire acondicionado
- Individual, frío/calor
Otras características
Información del precio
- Precio
- € 280.945
- Precio del m²
- 3.512 €/m²
Eficiencia energética
Opciones adicionales