1/3


Piso Bobovica, Samobor - Okolica, Samobor
€ 786.995
Anuncio actualizado el 28/01/2026
Descripción
referencia: 343
ID CODE: 343
Petra Cvitić
Suradnik u procesu obuke
Mob: 095 395 2930
E-mail: petra@gsnekretnine.hr
www.gsnekretnine.hr
Características
- Tipología
- Piso
- Contrato
- Venta
- Planta
- 2 planta
- Plantas del edificio
- 3
- Ascensor
- No
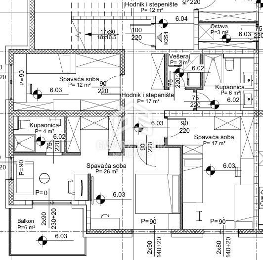
- Superficie
- 225 m²
- Habitaciones
- 5
- Dormitorios
- 5
- Baños
- 3
- Balcón
- Sí
- Terraza
- Sí
- Garaje, plazas de aparcamiento
- 1 en garaje privado
- Aire acondicionado
- Individual, frío/calor
Otras características
Información del precio
- Precio
- € 786.995
- Precio del m²
- 3.498 €/m²
Eficiencia energética
Opciones adicionales