Piso de dos habitaciones Bivio, Rijeka, Turan - Kantrida - Costabella, Rijeka

€ 360.000
2
40 m²
1
1
No

Nota

Anuncio actualizado el 18/04/2026
Descripción

This description has been translated automatically and may not be accurate

referencia: 1150

One-bedroom apartment in a luxury new building with a loggia, storage room, and parking space
In the prestigious Bivio area of Rijeka, just a few minutes’ walk from the sea, this modern one-bedroom apartment is located on the first floor of a high-quality new development. It is an ideal choice for anyone seeking a practical, elegant, and energy-efficient home in an exceptional micro-location.
The apartment is part of a contemporary residential building equipped with an elevator, advanced energy systems, an underground garage, and pre-installed infrastructure for electric vehicle charging. Bivio is known for its peaceful surroundings, excellent connectivity, and panoramic sea views. Within a 2-kilometre radius you’ll find kindergartens, schools, sports facilities, and shops — everything needed for comfortable everyday living.
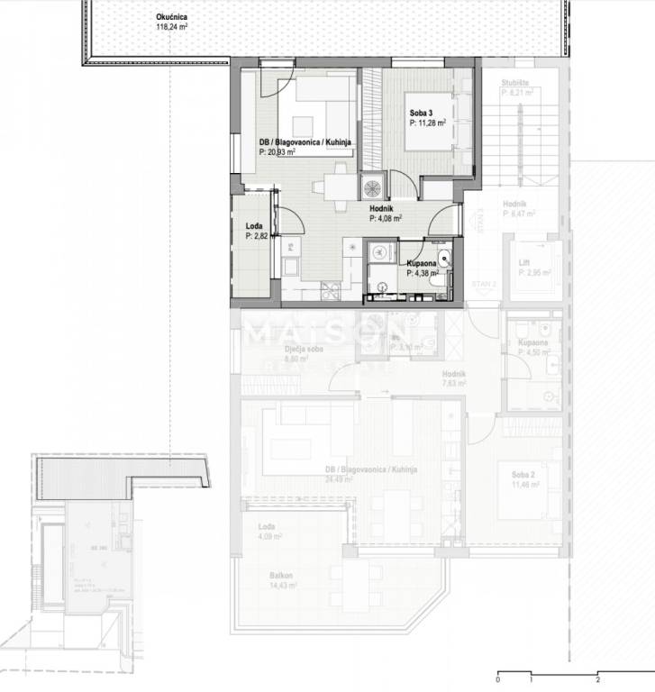
APARTMENT LAYOUT – 40.67 m² of interior space
The apartment is designed to maximise functionality and comfort:
Living room with dining area and kitchen – 20.93 m²
Bedroom – 11.28 m²
Bathroom – 4.38 m²
Hallway – 4.08 m²
Additional features:
Loggia – 3.76 m² (calculated 2.82 m²)
Private storage room – 3.10 m²
Garden area – 118.24 m² (calculated 11.82 m²)
Private parking space – 14.87 m² (calculated 3.72 m²)
TOTAL CALCULATED AREA: 58.63 m²
BUILDING SPECIFICATIONS
This new development meets the highest standards of residential construction:
Underfloor heating via air-to-water heat pump
Fan-coil cooling system in the living room and bedroom
Schüco aluminium joinery with electric shutters/blinds
High-quality Italian ceramic tiles in the bathroom and loggia
Premium parquet flooring in bedrooms and living areas
Glass railings on the loggia
Elevator and well-organised common areas
Underground garage with EV charging preparation
A special advantage of this apartment is its private garden, perfect for pets, a small garden, grill zone, or outdoor relaxation — a true rarity in modern residential buildings.
This apartment in Bivio offers the perfect balance of quality, functionality, and a prestigious coastal location. With modern construction standards, a private garden, storage room, and parking space, it is an exceptionally attractive opportunity on the market.
For more information or to arrange a viewing, feel free to contact us.

ID CODE: 1150

Luka Jelić
Asistent u prodaji
Mob: +385 99 299 3188
Tel: +385 51 640 777
E-mail: luka@maison-nekretnine.com
www.maison-nekretnine.com
Características
Tipología
Piso
Contrato
Venta
Planta
1 planta
Plantas del edificio
3
Ascensor
No
Superficie
40 m²
Habitaciones
2
Dormitorios
1
Baños
1
Balcón
No
Terraza
No
Garaje, plazas de aparcamiento
1 en aparcamiento/garaje público
Calefacción
Individual, por aire
Otras características
  • Sistema de alarma
Información del precio
Precio
€ 360.000
Precio del m²
9.000 €/m²
Eficiencia energética

Consumo de energia

A+

Plano
Descubre otros ángulos del inmueble
+2
Opciones adicionales

Contactar con el anunciante

O