Terreno urbanizable en Venta

€ 195.000
1.405 m²

Nota

Anuncio actualizado el 22/01/2026
Descripción

referencia: 5590

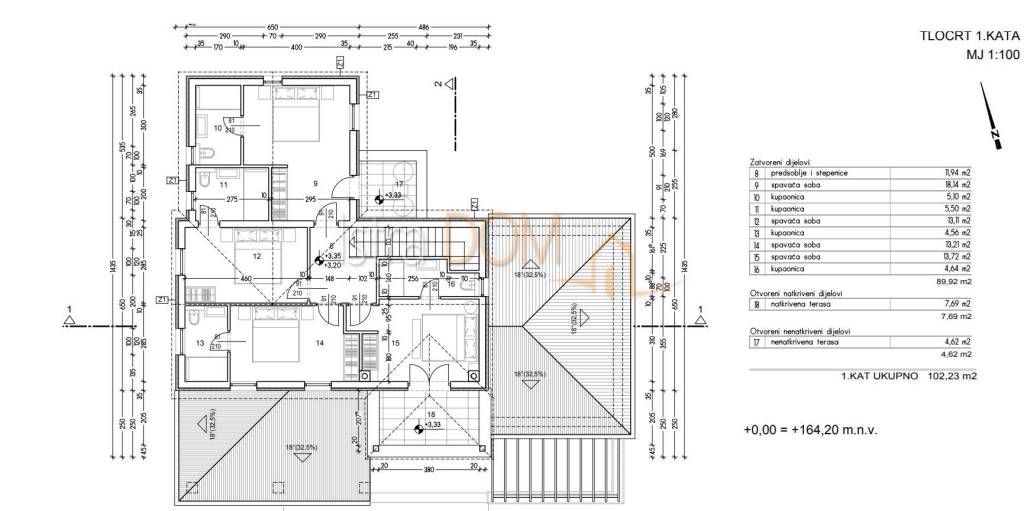
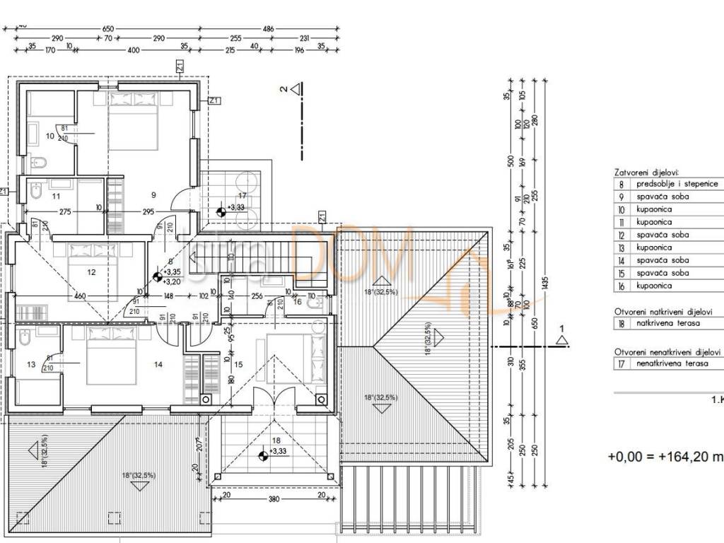
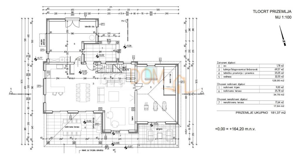
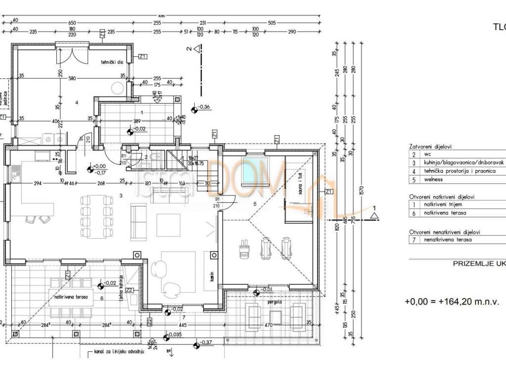
PRODAJA, GRAĐEVINSKO ZEMLJIŠTE S PROJEKTOM, KRNICA, 1405 m2

Prodaje se građevinsko zemljište u Krnici, na odličnoj i mirnoj lokaciji.

Zemljište se nalazi u građevinskom području, stambene namjene, veličine 1405 m2 te je za samo zemljište napravljen projekt koji se vidi na slikama.

Pristup direktan s asfaltirane ceste, zemljište je očišćeno te je ravno i idealno za početak brze gradnje. Zemljište ima uređen pristup s glavne ceste, kao i dodatni put koji ide po boku terena i koji ga razdvaja od susjedne parcele, koji se može koristiti kao alternativni prilaz.
Svi priključci su dovedeni i nalaze se na samoj čestici– voda, struja i kanalizacija. Iza građevinskog zemljišta nalazi se dodatnih 2810 m² poljoprivrednog zemljišta, koje pruža dodatnu privatnost i mogućnosti korištenja.

Pogodno za obiteljsku kuću s lijepom okućnicom u mirnom dijelu kao i za vilu za dugoročni ili kratkoročni najam.

More je na svega 5 kilometara zračne linije ili 10 minuta vožnje automobilom.

Vlasništvo uredno.
Cijena: 195.000 Eura
Projekt: Napravljen
Priključci: na čestici

Mislav Maračić
Agent s licencom
Mob: +385 91 2776234
Tel: +385 91 2776234
E-mail: mmnekretnine0@gmail.com
https://istra-dom.com/

ID CODE: 5590

Istra dom nekretnine
Mob: 0912776234
Tel: +385 52 381 040
E-mail: nekretnine@istra-dom.com
www.istra-dom.com
Características
Contrato
Venta
Tipología
Terreno urbanizable
Superficie
1.405 m²
Información del precio
Precio
€ 195.000
Precio del m²
139 €/m²
Plano
Descubre otros ángulos del inmueble
+15
Opciones adicionales

Contactar con el anunciante

O