Piso de tres habitaciones Štinjan, Pula, Štinjan, Pula

€ 230.000
3
57 m²
1
1
No

Nota

Anuncio actualizado el 22/01/2026
Descripción

This description has been translated automatically and may not be accurate

referencia: 4368

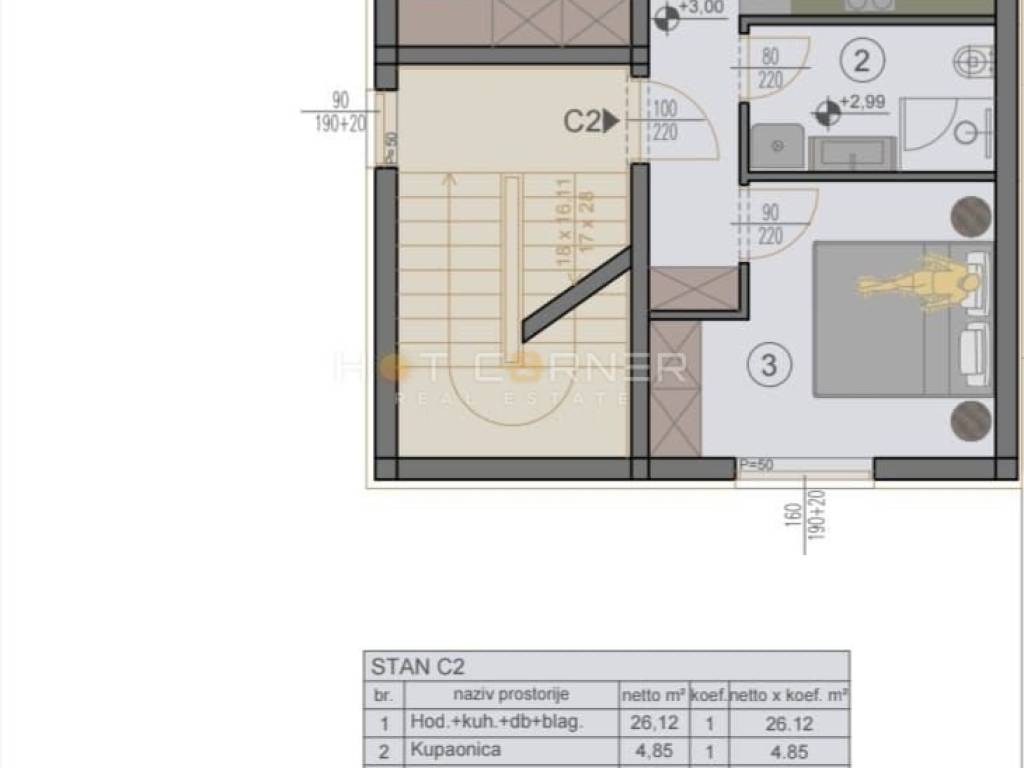
For sale is a beautiful, modernly designed apartment in a new building with a total area of 57.82 m², located on the first floor. It consists of two comfortable bedrooms, a bathroom, a hallway, and a spacious open-space living room with a kitchen and dining area, ideal for relaxation and socializing. The apartment offers a wonderful sea view — visible from the bedroom, balcony, and living area.

The price includes two parking spaces.
The building is under construction, with completion and move-in planned by summer 2026.

Štinjan is a peaceful and popular settlement near Pula, known for its great infrastructure and natural beauty. The beach is only one kilometer away, while the center of Pula is a 10-minute drive.

The apartment price is EUR 230,000, which is competitive and justified considering the quality and location.

For more information and to arrange a viewing, contact:
???? +385 99 205 5764
???? WhatsApp: +356 9974 4447
???? marijan@hotcorner.hr

This offer represents an excellent combination of safe investment and comfortable living in one of the most desirable parts of Istria.

ID CODE: 4368

Hot corner nekretnine
Mob: 0992055764
Tel: +385 52 212 841
Fax: +385 52 212 841
E-mail: info@hotcorner.hr
www.hotcorner.hr
Características
Tipología
Piso
Contrato
Venta
Planta
1 planta
Plantas del edificio
2
Ascensor
No
Superficie
57 m²
Habitaciones
3
Dormitorios
2
Baños
1
Balcón
No
Terraza
No
Garaje, plazas de aparcamiento
2 en aparcamiento/garaje público
Aire acondicionado
Individual, frío/calor
Información del precio
Precio
€ 230.000
Precio del m²
4.035 €/m²
Eficiencia energética

Consumo de energia

A+

Descubre otros ángulos del inmueble
+10
Opciones adicionales

Contactar con el anunciante

O