Piso de tres habitaciones Vidici, Šibenik, Šibenik

€ 264.670
3
75 m²
1
B
No

Nota

Anuncio actualizado el 05/02/2026
Descripción

This description has been translated automatically and may not be accurate

referencia: 113

A modern ground floor apartment for sale in a new residential building in the sought-after Vidici neighborhood of Šibenik. The building has only 5 units, ensuring peace and privacy.

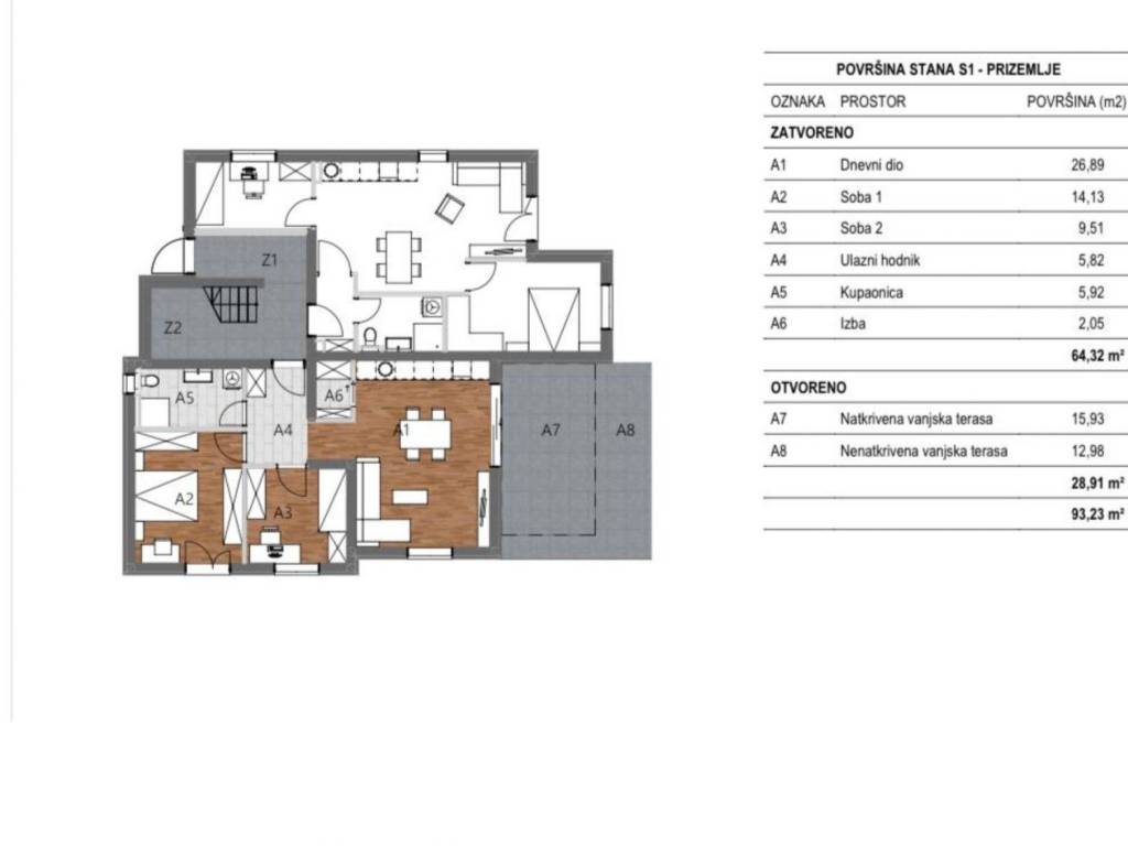
Apartment S1 – Ground Floor
Total area: 93.23 m²
Enclosed space: 64.32 m²
Covered terrace: 15.93 m²
Uncovered terrace: 12.98 m²

Layout:

Living room with kitchen and dining area (26.89 m²)

Two bedrooms

Bathroom

Entrance hall

Storage room

The apartment comes with one designated parking space.
Underfloor heating is installed throughout all rooms, and the apartment is air-conditioned.

The building is constructed with modern materials and built to high construction standards. The terrace offers additional space for relaxation and can be customized to your liking.

Key features and location advantages:

Quiet and desirable location

Close to shops, school, kindergarten, and public transport

High-quality new construction

Ideal for family living

For more information and to arrange a viewing, feel free to contact us.

ID CODE: 113

Andro Jakoliš
Mob: +385 99 347 3562
E-mail: andro@materra.estate
www.materra.estate
Características
Tipología
Piso
Contrato
Venta
Planta
Planta baja
Plantas del edificio
2
Ascensor
No
Superficie
75 m²
Habitaciones
3
Dormitorios
2
Baños
1
Balcón
No
Terraza
No
Garaje, plazas de aparcamiento
1 en aparcamiento/garaje público
Información del precio
Precio
€ 264.670
Precio del m²
3.529 €/m²
Eficiencia energética
  • Certificación energética

    Inclasificable
Descubre otros ángulos del inmueble
+6
Opciones adicionales

Contactar con el anunciante

O