1/7


Piso de dos habitaciones Donja Dubrava, Retkovec, Zagreb
€ 197.220
Anuncio actualizado el 30/01/2026
Descripción
This description has been translated automatically by Google Translate and may not be accurate
referencia: 6103
ID CODE: 6103
CASA BELLA NEKRETNINE d.o.o.
Mob: +385 91 613 8866
E-mail: info@casabellanekretnine.hr
www.casabellanekretnine.hr
Características
- Tipología
- Piso
- Contrato
- Venta
- Planta
- Entresuelo
- Ascensor
- No
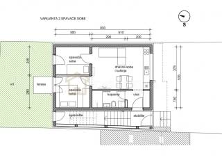
- Superficie
- 51 m²
- Habitaciones
- 2
- Dormitorios
- 1
- Baños
- 1
- Balcón
- No
- Terraza
- Sí
- Garaje, plazas de aparcamiento
- 1 en aparcamiento/garaje público
- Calefacción
- Central, suelo radiante
Información del precio
- Precio
- € 197.220
- Precio del m²
- 3.867 €/m²
Eficiencia energética
Descubre otros ángulos del inmueble
Opciones adicionales