Piso de dos habitaciones nuevo, Mušalež - Varvari, Poreč

€ 307.760
2
76 m²
2
Balcón

Nota

Anuncio actualizado el 03/02/2026
Descripción

This description has been translated automatically and may not be accurate

referencia: 101200-485

POREČ, APARTMENT, NEW CONSTRUCTION ONLY 1.3 KM FROM THE SEA AND BEACH

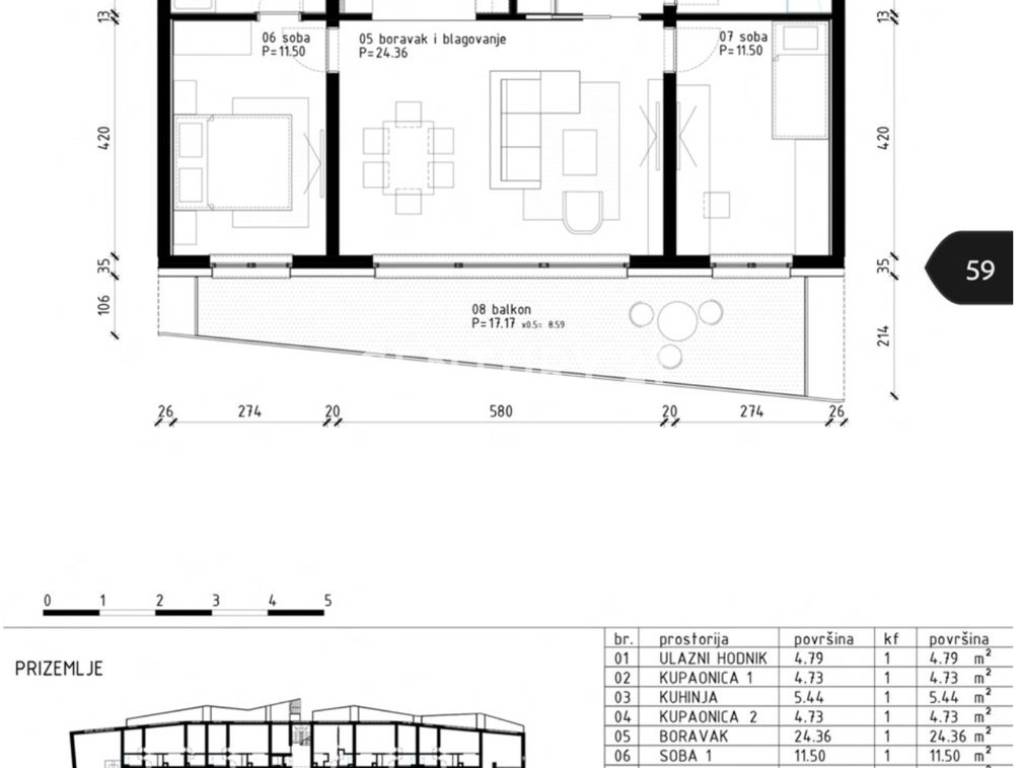
An apartment is for sale in Poreč, 2.5-room (2BR+DB), with a NET usable area of 76.94 m2 (gross 86.84 m2), located on the ground floor of a residential building. This apartment offers modern architecture and a high standard of construction.
The apartment consists of an entrance hallway, kitchen with dining area and open-plan living room, two bedrooms, two bathrooms, a spacious terrace of 17.17 m2, storage room, and parking space.

The apartment also includes a storage room and a parking space in the underground garage.
Located in a quiet area, the apartment is southwest oriented, ensuring plenty of natural light and a beautiful view. The proximity to the sea and nature makes this property ideal for those who appreciate living in harmony with the environment, and it is only 1.3 km from the sea and beach.

The construction and materials used are of the highest quality.

Facade system with 15 cm thick stone wool insulation, three-layer Weitler parquet flooring, large-format modern ceramics, Daikin heat pump heating/cooling system with parapet units, elevator, exterior joinery combining wood/aluminum with triple glazing, interior wood joinery, burglar and fire-resistant doors, balcony railing made of tempered glass 2x10 mm.

Building management and maintenance will be provided by the investor.

Poreč, as a prestigious location on the Adriatic, offers a wealth of cultural and natural attractions, along with proximity to all necessary amenities for everyday life. The apartment is perfectly positioned to enjoy all the benefits this region offers.

For more information or to arrange a viewing, feel free to contact us. Take advantage of the opportunity to own a property in one of the most desirable locations on the Adriatic.
Si deseas más información puedes hablar con Kristijan Fraj.
Características
Tipología
Piso | Tipo de inmueble medio
Contrato
Venta
Plantas del edificio
3
Ascensor
Superficie
76 m²
Habitaciones
2
Dormitorios
2
Baños
2
Balcón
Terraza
No
Calefacción
Central, por radiadores
Información del precio
Precio
€ 307.760
Precio del m²
4.049 €/m²
Eficiencia energética
  • Año de construcción

    2025
  • Estado

    Nuevo / En construcción
  • Calefacción

    Central, por radiadores
  • Certificación energética

    Pendiente de certificación
Descubre otros ángulos del inmueble
+8
Opciones adicionales

Contactar con el anunciante

O