map icon

Terreno urbanizable en Venta

Kaštela
€ 420.000

Nota

Anuncio actualizado el 19/02/2026
Descripción

referencia: 2041/116

Na prodaju je građevinsko zemljište površine 1.300 m s izdanom građevinskom dozvolom, smješteno u mirnom i sunčanom okruženju. Iako s razine terena nema otvoren pogled na more, buduća nekretnina izgrađena na višim etažama imat će prekrasan pogled na more i okolni krajolik.



Parcela je pravilnog oblika, što omogućava optimalno planiranje i iskorištavanje prostora. Do zemljišta vodi uredna pristupna cesta, a potrebna infrastruktura struja, voda i kanalizacija nalazi se u neposrednoj blizini.



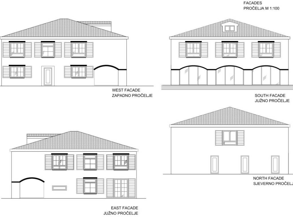
Prema postojećem projektu, za koji postoji građevinska dozvola, nekretnina bi imala bruto stambenu površinu od oko 400 m2 raspoređenu na prizemlje i prvi kat. U ovoj fazi projekt je moguće potpuno izmjeniti. Parcela se može podijeliti u dvije i izgraditi dvije zasebne nekretnine.



Lokacija pruža mir i privatnosti, a istovremeno je nedaleko od svih ključnih sadržaja za ugodan život poput trgovina, škola, plaža i javnog prijevoza.



Ovo zemljište predstavlja izvrsnu investicijsku priliku zahvaljujući svojoj poziciji, dozvoljenim mogućnostima gradnje i budućem pogledu na more. Idealno je za realizaciju projekta luksuzne vile s bazenom, kuće za odmor ili obiteljske kuće za cjelogodišnje stanovanje.

Características
Contrato
Venta
Tipología
Terreno urbanizable
Información del precio
Precio
€ 420.000
Descubre otros ángulos del inmueble
+9
Opciones adicionales

Contactar con el anunciante

O