map icon

Casa unifamiliar 96 m², Mljet

Mljet
€ 650.000
3
96 m²
2

Nota

Anuncio actualizado el 19/02/2026
Descripción

This description has been translated automatically and may not be accurate

referencia: 2021/336

The island of Mljet, house first row to the sea.

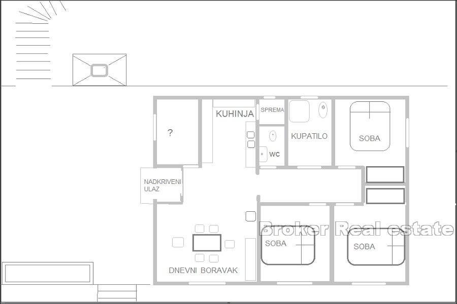
The house is located in an attractive location by the sea. With no road or road in front of you, with your own practically private beach where there is also a mooring for a boat. The house is one-story, unfinished, infrastructure equipped with electricity and water, it currently has a habitable 1 floor with a floor plan area of 96m2.

The house belongs to land with a total area of 3500m2, which is divided into the first row to the sea where the house itself is located, and the second row immediately above the house.

Mljet is the most forested Croatian island, a national park, an island of mysticism, where you can rarely find real estate for purchase, and even more rarely a house in an attractive location in the first row to the sea.

The island is connected by ferry to the Pelješac peninsula, which is a 40-minute drive by car to the first highway junction, or an hours drive to the airport in Dubrovnik.

Características
Tipología
Casa unifamiliar
Contrato
Venta
Superficie
96 m²
Habitaciones
3
Baños
2
Información del precio
Precio
€ 650.000
Precio del m²
6.771 €/m²
Eficiencia energética
  • Certificación energética

    Exento
Descubre otros ángulos del inmueble
+6
Opciones adicionales

Contactar con el anunciante

O