Oficina - Despacho en Alquiler

€ 2.357/mes
157 m²
B

Nota

Anuncio actualizado el 03/03/2026
Descripción

referencia: EUROVILLA-847516

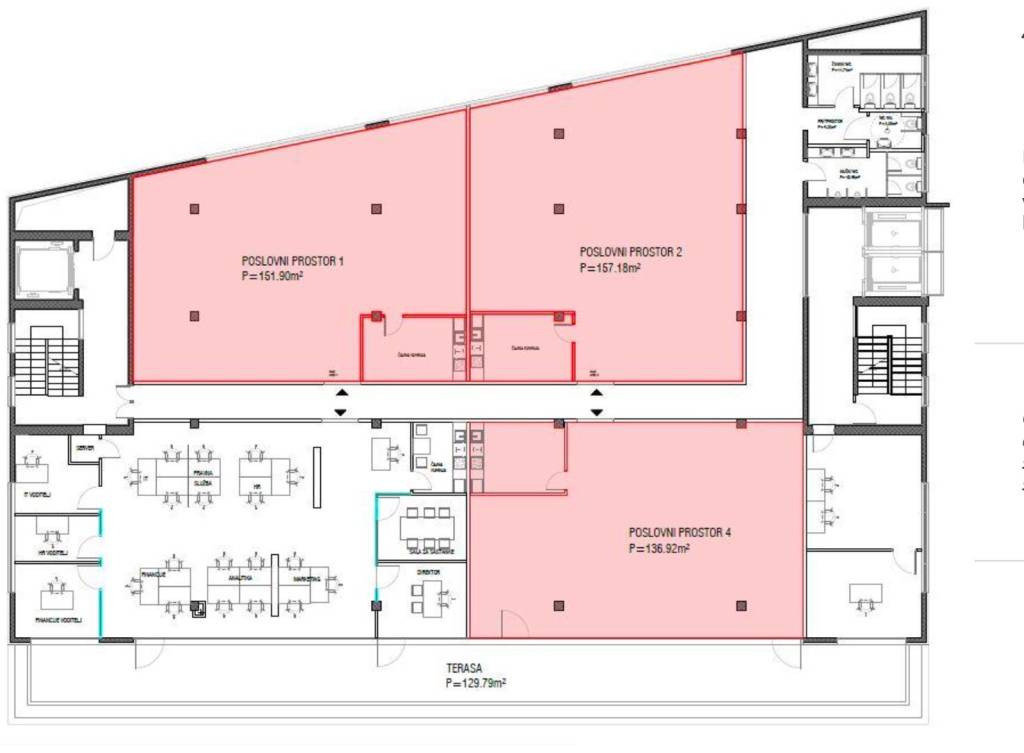
Predstavljamo izvanrednu priliku za najam u Splitu, u etabliranoj poslovnoj zoni Dračevac - modernu poslovnu zgradu koja nudi neusporedivu kombinaciju prostranosti, funkcionalnosti i strateške lokacije. Ova nekretnina predstavlja idealno rješenje za tvrtke koje traže reprezentativan prostor za svoje sjedište, inovativne urede, tehnološke centre ili prestižne prodajne salone. Pozicionirana u dinamičnom okruženju, zgrada osigurava vrhunsku pristupačnost i vidljivost, što je ključno za uspješno poslovanje u današnjem tržištu. Njena suvremena arhitektura i promišljen dizajn osiguravaju ne samo estetsku privlačnost, već i maksimalnu učinkovitost i udobnost za sve korisnike.Drugi kat, površine 157.18 m2, što pruža dodatnu razinu prilagodljivosti. Ova opcija je iznimno korisna za tvrtke koje žele kombinirati različite odjele unutar iste razine ili pak iznajmiti dio prostora, maksimizirajući povrat investicije. Ono što izdvaja ovaj kat jest impresivan, duž cijelog južnog dijela smješten balkon s čvrstom arlom. Ovaj prostrani balkon ne samo da obogaćuje estetsku vrijednost prostora, već pruža i idealno mjesto za opuštanje tijekom pauze, neformalne sastanke na otvorenom ili kao dio reprezentativnog ulaza za klijente. Pristup svježem zraku i prirodnom svjetlu doprinosi poboljšanju dobrobiti zaposlenika i ukupne atmosfere u radnom okruženju, čineći ovaj kat posebno atraktivnim za tvrtke koje cijene kvalitetu života na radnom mjestu.Ne propustite priliku da postanete vlasnik ove izvanredne poslovne zgrade koja obećava ne samo vrhunske uvjete za rad, već i značajan potencijal za dugoročni rast vrijednosti. Idealna za tvrtke koje traže prostor s vizijom, ova zgrada je spremna da postane vaša nova poslovna adresa i katalizator za daljnji uspjeh. Kontaktirajte nas danas kako biste saznali više informacija i dogovorili privatno razgledavanje. Naš tim stručnjaka stoji vam na raspolaganju za sva dodatna pitanja i pružanje detaljnih uvida u ovu jedinstvenu ponudu na splitskom tržištu nekretnina. Omogućite svom poslovanju lokaciju i prostor kakav zaslužuje!... Više na eurovilla.hr, ID: 847516
Si deseas más información puedes hablar con Igor Lozo.
Características
Contrato
Alquiler
Tipología
Oficina - Despacho
Superficie
157 m²
Planta
Planta baja
Garaje, plazas de aparcamiento
120 en garaje privado
Detalle superficie

Otro

Planta
Planta baja
Superficie
157,2 m²
Coeficiente
100%
Tipo de superficie
Principal
Superficie construida
157,2 m²
Información del precio
Precio
€ 2.357/mes
Precio del m²
15 €/m²
Desglose de los costes
Fianza
No indicada
Plano
Descubre otros ángulos del inmueble
+26
Opciones adicionales

Contactar con el anunciante

O