Piso de cuatro habitaciones Pirovac, Pirovac

€ 315.000
4
100 m²
2
No
Terraza

Nota

Anuncio actualizado el 20/03/2026
Descripción

This description has been translated automatically and may not be accurate

referencia: 5189

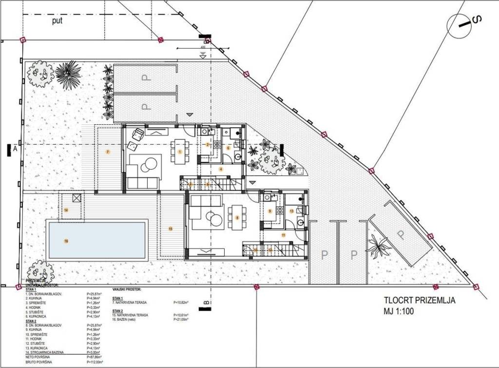
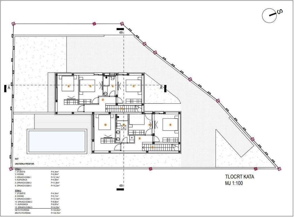
A two-story apartment in a semi-detached house is for sale in a quiet location in Pirovac.

APARTMENT S1 consists of the ground floor, the first floor and a terrace with a garden. On the ground floor there is a living room/dining room (25.87 m2), a kitchen (4.94 m2), a storage room (1.26 m2), a corridor (3.33 m2), a staircase (2.90 m2), a bathroom (4 ,13 m2), a covered terrace (10.82 m2) and an adjoining garden. There are three bedrooms and a bathroom on the first floor. room 1 (12.14 m2), room 2 (11.26 m2), room 3 (14.23 m2), bathroom (4.59 m2), corridor (5 m2) and staircase (4.34 m2). There are two parking spaces.

Very high-quality and modern construction, thermal insulation (10 cm), PVC windows and glass walls (3.30 m wide), eclectic blinds, air conditioners in the rooms and dining room / living room, underfloor heating in the bathrooms, high-quality ceramics and sanitary ware in the bathrooms.

Lolić beach is 700 m away, and the center is 800 m away.

Provizija agencije za kupca iznosi 3% + PDV i plaća se u slučaju kupovine nekretnine kod zaključenja kupoprodajnog Ugovora.

ID CODE: 5189

Euro Immobilien d.o.o.
Mob: 00385 (0)99 444 0500
Tel: +385 51 220 024
E-mail: info@euro-immobilien.hr
www.euro-immobilien.hr
Características
Tipología
Piso
Contrato
Venta
Ascensor
No
Superficie
100 m²
Habitaciones
4
Dormitorios
3
Baños
2
Balcón
No
Terraza
Garaje, plazas de aparcamiento
2 en aparcamiento/garaje público
Calefacción
Individual, por aire
Aire acondicionado
Individual, frío/calor
Información del precio
Precio
€ 315.000
Precio del m²
3.150 €/m²
Eficiencia energética
  • Año de construcción

    2024
  • Calefacción

    Individual, por aire
  • Aire acondicionado

    Individual, frío/calor
  • Certificación energética

    Inclasificable
Plano
Descubre otros ángulos del inmueble
+2
Opciones adicionales

Contactar con el anunciante

O