Piso de tres habitaciones Kantrida, Rijeka, Turan - Kantrida - Costabella, Rijeka

€ 590.000
3
88 m²
1
B
Balcón
Terraza

Nota

Anuncio actualizado el 20/03/2026
Descripción

This description has been translated automatically and may not be accurate

referencia: JD-7392

In the elite part of Kantrida, in a quiet and highly desirable street, there is a modern residential building of the highest standard, energy class A+, built with a focus on comfort, quality, and contemporary living.

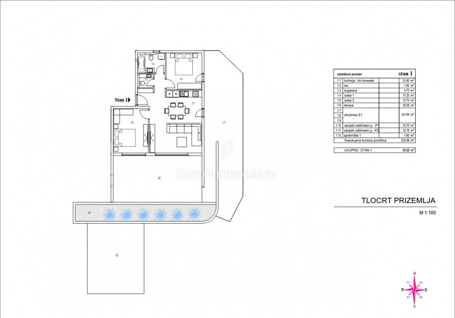
Offered is a ground-floor apartment that perfectly combines functionality and elegance. It consists of a spacious living room with kitchen and dining area, two bedrooms, a bathroom, and an additional guest toilet. From the living area there is access to a private garden, ideal for relaxation, social gatherings, or enjoying a morning coffee.

The apartment includes two covered outdoor parking spaces, and the building is equipped with an elevator and a smart home management system, allowing easy control of lighting, heating, cooling, and security functions via mobile devices.

Heating and cooling are provided by a heat pump, underfloor heating, and a Mitsubishi VRV system, ensuring excellent energy efficiency and year-round comfort.

The interior exudes refinement and timeless elegance—oak parquet flooring, premium Italian ceramics, and Laufen and Geberit sanitary ware create a luxurious atmosphere. Aluminum-wood joinery with triple glazing guarantees excellent thermal and sound insulation.

The surroundings are professionally landscaped, with paved walkways and green areas that further emphasize the peaceful and luxurious character of the location.

An ideal choice for those seeking high standards, privacy, and a modern lifestyle.

Provizija agencije za kupca iznosi 3% + PDV i plaća se u slučaju kupovine nekretnine kod zaključenja kupoprodajnog Ugovora.

ID CODE: JD-7392

Euro Immobilien d.o.o.
Mob: 00385994440500
Tel: +385 51 220 024
E-mail: info@euro-immobilien.hr
www.euro-immobilien.hr
Características
Tipología
Piso
Contrato
Venta
Planta
Planta baja
Plantas del edificio
2
Ascensor
Superficie
88 m²
Habitaciones
3
Dormitorios
2
Baños
1
Balcón
Terraza
Garaje, plazas de aparcamiento
1 en garaje privado, 2 en aparcamiento/garaje público
Aire acondicionado
Individual, frío/calor
Información del precio
Precio
€ 590.000
Precio del m²
6.705 €/m²
Eficiencia energética

Consumo de energia

A+

Descubre otros ángulos del inmueble
+23
Opciones adicionales

Contactar con el anunciante

O