Piso de dos habitaciones nuevo, primera planta, Varaždin

€ 150.300
2
51 m²
1
1
No

Nota

Anuncio actualizado el 14/04/2026
Descripción

referencia: 155

PRETPRODAJA: stan u fazi gradnje; završetak radova 07/2027. godine!
PREDNOSTI KUPNJE OVE NEKRETNINE:
• CIJENA: 3.200 €/m2, UZ POPUST DALJNJIH 200,00 €/m2 ZA AVANSIRANJE U CIJELOSTI + TROSTRUKO JAMSTVO KAO OSIGURANJE: ZADUŽNICA, JAMAC PLATAC I UPIS ZALOŽNOG PRAVA NA NEKRETNINU!
• STAN JE U SUSTAVU PDV-a: KUPAC NE PLAĆA POREZ NA PROMET NEKRETNINA (3%)!
• BEZ PROVIZIJE ZA KUPCA!
• BEZ TROŠKOVA ZA PREGLED NEKRETNINE!
• KONAČNU CIJENU KUPAC UGOVARA ISKLJUČIVO SA PRODAVATELJEM!
• MOGUĆNOST KUPNJE VIŠE PARKIRNIH MJESTA POVRŠINE 12,5 m2

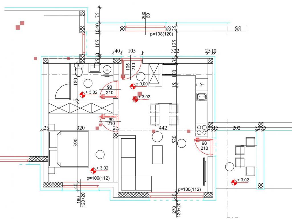
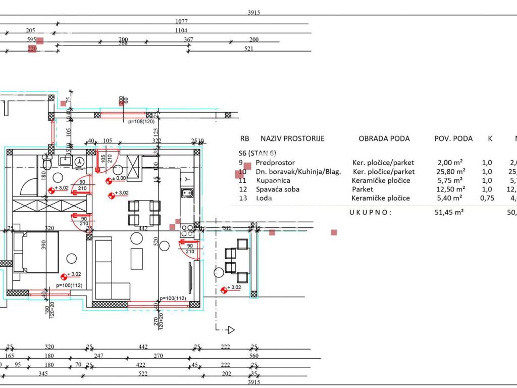
VRHUNSKI stan na 1. katu stambene zgrade odlično osmišljenog rasporeda, sa komfornim open space prostorom sa kuhinjom, blagovaonicom i dnevnim boravkom; stan ima 1 spavaću sobu.
Ukupna stvarna površina stana iznosi 51.45 m2, neto korisna površina (NKP) iznosi 50.10 m2, sa opremljenošću po principu „ključ u ruke“, koja uključuje:
- toplinska fasadna ovojnica u debljini 15 cm (veći dio ETICS toplinsko-fasadni sustav)
- eventualna promjena rasporeda po želji kupca/prema dogovoru sa investitorom
- zajedničko stubište i hodnici izolirani prema stanovima vunom od 5 cm, zajedničko stubište sa završnom podnom oblogom od keramičkih pločica
- plinsko etažno podno grijanje
- zasebno brojila za vodu i struju (zasebna za svaku stambenu jedinicu)
- po cijeloj stambenoj jedinici, završna obloga podova keramikom ili seljačkim podom po želji investitora u željenom omjeru (izbor keramike i seljačkog poda u dva dekora (3-slojni seljački pod - hrast nature ili tamnosmeđi, prema želji investitora)
- zidovi žbukani finom žbukom, kupaonica obložena keramikom do stropa, podovi balkona - keramika
- PVC stolarija antracit sive boje, iznutra i izvana 3-slojno ostakljenje
- rolete unutarnje, antracit sive boje
- led rasvjeta unutar stana, utičnice i štekeri, led vanjska rasvjeta na zajedničkim prostorijama, klima uređaj marke Samsung od 3,5 kW
- unutarnja drvena stolarija u boji s kvakama (po izboru boja vrata i kvake)
- unutarnje prozorske klupčice od granita (crna boja ili boja granita po želji kupca)
- vanjske limene klupčice u antracit sivoj boji
- klupčice od granita na balkonima u tamnoj boji
- video portafon
- protuprovalna i protupožarna vrata
- poštanski sandučić na ulazu, po želji kupca
- priprema za video nadzor
PROSTORIJE I POVRŠINE:
• predprostor 2.00 m2
• dnevni boravak/kuhinja/blagovaonica 25.80 m2
• kupaonica 5.75 m2
• spavaća soba 12.50 m2
• lođa (5.40 m2 x 0.75) 4.05 m2
CIJENA PARKIRNOG MJESTA: 12.5 M2 X 0.25 = 3.125 M2 X 3.000 € = 9.375 € ZA AVANSNO PLAĆANJE U CIJELOSTI, UZ MOGUĆNOST KUPNJE VIŠE PARKIRNIH MJESTA!
Características
Tipología
Piso | Tipo de inmueble medio
Contrato
Venta
Planta
1 planta
Plantas del edificio
2
Ascensor
No
Superficie
51 m²
Habitaciones
2
Dormitorios
2
Baños
1
Balcón
No
Terraza
No
Calefacción
Central, por radiadores
Aire acondicionado
Individual
Información del precio
Precio
€ 150.300
Precio del m²
2.947 €/m²
Eficiencia energética

Consumo de energia

A+

Descubre otros ángulos del inmueble
+11
Opciones adicionales

Contactar con el anunciante

O