Piso de tres habitaciones nuevo, planta baja, Vodice

€ 335.160
3
80 m²
2
1
Terraza

Nota

Anuncio actualizado el 24/12/2025
Descripción

This description has been translated automatically and may not be accurate

referencia: 43091

ŠIBENIK, SRIMA Exclusive ground floor apartment, 70 m from the sea and beach a rarity on the market

DUX presents a modern apartment S3 located in a new building with a total of eight residential units, in an extremely attractive location in Srima, only 70 meters from the sea and beach, in the second row from the sea.
This unique property perfectly combines top quality construction, modern design and an excellent location, making it an ideal choice for a quiet family life, vacation or investment near the sea.

The apartment is located on the ground floor of the building, which allows easy access to the terrace and spacious garden, and thanks to its southeast orientation, it enjoys plenty of natural light throughout the day.
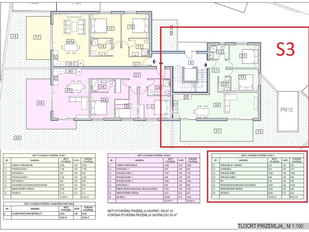
The total net area of the apartment is 174.53 m, while the usable living area is 80.79 m.
A special value for this property is given by the spacious yard of 84.54 m, which is a real rarity on the market and the perfect place to relax and enjoy the Mediterranean ambiance.

Description of the space:
Apartment S3 has an extremely functional layout and airy rooms.
Upon entering, you are greeted by a hallway with a hallway that leads to the open space of the living room, kitchen and dining room with access to a large uncovered terrace and a landscaped garden, ideal for outdoor living.
There are also two bedrooms, a bathroom and a separate toilet that provides additional practicality.

The apartment also has one parking space, which further increases its functionality and value.

Floor plan (net area):
Entrance hall and hallway: 6.25 m
Bathroom: 4.20 m
Bedroom 1: 10.69 m
Bedroom 2: 9.69 m
WC: 2.55 m
Living room, kitchen and dining room: 33.08 m
Uncovered terrace: 23.53 m
Garden: 84.54 m

Total net area: 174.53 m
Useful living area: 80.79 m

Equipment and features:
Distance from the sea and beach: 70 m / 1 minute walk
Orientation: southeast
Underfloor heating in the bathroom and living room
Air conditioning in all rooms
PVC windows with triple glazing and electric shutters
Thermo-insulated facade (10 cm)
Top-quality ceramics and sanitary ware from renowned manufacturers
High-quality materials and finishing
Reputable contractor with a proven reputation
One parking space included in the price

Spacious yard of 84.54 m - a rarity on the market

This modern new building in Srima represents an excellent opportunity to purchase a luxury apartment near the sea, which combines comfort, functionality and a prestigious location.
For all additional information and to arrange a viewing, please contact us.

Srima is a quiet and charming seaside village known for its long pebble beaches, crystal clear sea and relaxed Mediterranean atmosphere.
Thanks to its proximity to Vodice and Šibenik, it offers the perfect balance between peace and the availability of all the amenities needed for a comfortable life.

Dear clients, the agency commission is charged in accordance with the General Terms and Conditions:
www.dux-nekretnine.hr/opci-uvjeti-poslovanja

ID CODE: 43091

Ivan Bego
Agent pripravnik
Mob: +385 91 312 1121
Tel: +385 91 480 8808
E-mail: ivan@dux-dalmacija.com
www.dux-nekretnine.hr
Si deseas más información puedes hablar con Ivan Bego.
Características
Tipología
Piso
Contrato
Venta
Planta
1
Superficie
80 m² | comercial 164 m²
Habitaciones
3
Dormitorios
2
Baños
2
Balcón
No
Terraza
Aire acondicionado
Individual, frío/calor
Detalle superficie

Vivienda

Planta
1
Superficie
80,0 m²
Coeficiente
100%
Tipo de superficie
Principal
Superficie construida
80,0 m²

Terreno

Planta
Planta baja
Superficie
84,0 m²
Coeficiente
100%
Tipo de superficie
Anexos
Superficie construida
84,0 m²
Información del precio
Precio
€ 335.160
Precio del m²
2.044 €/m²
Eficiencia energética
  • Año de construcción

    2026
  • Estado

    Nuevo / En construcción
  • Aire acondicionado

    Individual, frío/calor
  • Certificación energética

    Exento
Descubre otros ángulos del inmueble
+9
Opciones adicionales

Contactar con el anunciante

O