Piso de dos habitaciones nuevo, planta baja, Rab

€ 159.000
2
51 m²
1
B
Balcón

Nota

Anuncio actualizado el 13/04/2026
Descripción

This description has been translated automatically and may not be accurate

referencia: 37507

ISLAND OF RAB, BANJOL - 1-bedroom apartment in a modern new building

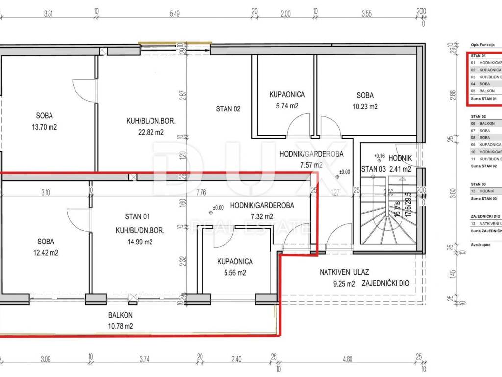
Located in a quiet and elevated location in Banjol, this new building offers a beautiful view of the sea and the old town. And not only of the recognizable bell towers, but also of the Barbat Channel all the way to Pag. The building consists of three apartments, each with its own entrance and two parking spaces. Apartment 1: Ground floor - AVAILABLE - 1-bedroom + living room, private entrance, balcony, 2 parking spaces, sea view --- One-bedroom apartment, living area 42.99 m2, consisting of an entrance area - wardrobe, bathroom, open-space living area with kitchen, dining room and living room and a bedroom 12.42 m2. From the room, as well as from the living area, there is an exit to the balcony of 10.78 m2, which extends the entire length of the apartment. The apartment is ideal for couples looking for a quiet environment, near the city. Apartment 1 - price: EUR 238,000.00 Apartment 2: Ground floor - AVAILABLE - 2 bedrooms + living room, private entrance, balcony, private garden, 2 parking spaces, sea view --- The apartment has an area of 64.98 m2, offers a slightly more comfortable stay, with a spacious living room, kitchen, two bedrooms and a bathroom. One room has access to a smaller balcony, which overlooks the old town. The special feature of this apartment is its private garden, which is accessed from the living area. It is perfect for a family or as a rental investment. Apartment 2 - price: EUR 311,000.00 Apartment 3: Floor - AVAILABLE - PENTHOUSE 120.07 m2, 3 bedrooms + living room, private entrance, covered terrace, 2 parking spaces, panoramic view --- Apartment 3 - price: EUR 620,000.00 ONLY ON OFFER WITH US! You can't miss this location and this panoramic view! Completion of the works is expected in late summer 2025.

***
Dear clients, the agency commission is charged in accordance with the General Terms and Conditions: www.dux-nekretnine.hr/opci-uvjeti-poslovanja

ID CODE: 37507

Iva Mršić
Agent s licencom
Mob: +385 91 575 9388
Tel: +385 91 480 8808
E-mail: iva@dux-nekretnine.hr
www.dux-krk.com
Si deseas más información puedes hablar con Iva Mršić.
Características
Tipología
Piso
Contrato
Venta
Planta
Planta baja
Ascensor
Superficie
51 m²
Habitaciones
2
Dormitorios
1
Baños
1
Balcón
Terraza
No
Aire acondicionado
Individual, frío/calor
Información del precio
Precio
€ 159.000
Precio del m²
3.118 €/m²
Eficiencia energética
  • Año de construcción

    2025
  • Estado

    Nuevo / En construcción
  • Aire acondicionado

    Individual, frío/calor
  • Certificación energética

    Exento
Descubre otros ángulos del inmueble
+7
Opciones adicionales

Contactar con el anunciante

O