Piso de tres habitaciones nuevo, planta baja, Dobrinj

€ 265.000
3
63 m²
2
1
Terraza

Nota

Anuncio actualizado el 07/04/2026
Descripción

This description has been translated automatically and may not be accurate

referencia: a-1134

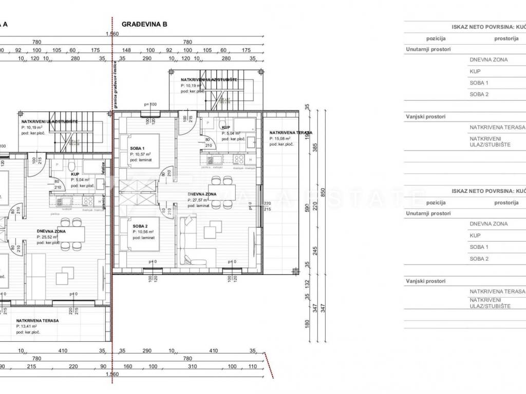
Real estate Island of Krk, Soline bay - for sale is an apartment on the ground floor of a new building consisting of a total of six residential units. The apartment has a living area of 63 m2 and consists of an entrance hall, two bedrooms, bathroom, kitchen, dining room and living room with access to a covered terrace and a garden of 30 m2. It has one parking space in the common courtyard of the building. Quality materials and equipment were used for construction, including ceramic floor coverings, quality sanitary ware, electric underfloor heating in the bathroom, air conditioning, high-quality aluminum and PVC joinery and security doors. It is located in a prime location near the sea, beautiful beaches and the center with all necessary amenities. The property is currently under construction, and the planned completion is expected by the end of 2025.
The Vala Estate Malinska agency will provide you with a safe and transparent transfer of ownership and all necessary documentation.

ID CODE: a-1134

VALA ESTATE d.o.o.
Mob: +385 99 444 0550
Tel: +385 51 568 917
E-mail: info@vala-estate.com
www.vala-estate.com
Características
Tipología
Piso
Contrato
Venta
Planta
1
Superficie
63 m² | comercial 93 m²
Habitaciones
3
Dormitorios
2
Baños
2
Balcón
No
Terraza
Otras características
  • Puerta blindada
Detalle superficie

Vivienda

Planta
1
Superficie
63,0 m²
Coeficiente
100%
Tipo de superficie
Principal
Superficie construida
63,0 m²

Terreno

Planta
Planta baja
Superficie
30,0 m²
Coeficiente
100%
Tipo de superficie
Anexos
Superficie construida
30,0 m²
Información del precio
Precio
€ 265.000
Precio del m²
2.849 €/m²
Eficiencia energética
  • Año de construcción

    2025
  • Estado

    Nuevo / En construcción
  • Certificación energética

    Exento
Descubre otros ángulos del inmueble
+18
Opciones adicionales

Contactar con el anunciante

O