map icon

Appartement 120 m², Medulin

Medulin
€ 505 000
120 m²
3

Remarque

Annonce mise à jour le 22/12/2025
Description

This description has been translated automatically and may not be accurate

référence: 3206


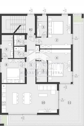
In a quiet part of Medulin, further from the sea, is this luxury apartment in a building with three apartments and a basement garage. The apartment on the first floor consists of an entrance hall, three bedrooms with private bathrooms, a separate toilet, a laundry room, a living room with kitchen and dining room, a covered terrace, a storage room in the basement, one garage and one outdoor parking space.

The building also has a heated outdoor swimming pool for shared use.

The interior is top-notch equipment from renowned domestic and foreign manufacturers. First-class three-layer oak parquet. First-class Italian ceramic tiles of larger dimensions. Underfloor heating throughout the apartment via a heat pump. All coverings are adapted to underfloor heating. Hot water is regulated by a heat pump. All rooms are air-conditioned (living room and all bedrooms). In the current phase of construction, it is possible to choose ceramic tiles.

If you want a luxury property, and you have the option of purchasing through a loan, this is your opportunity.

The building is in a higher stage of construction. To make a reservation, you need to pay 10% of the purchase price, and the rest by credit and/or bank transfer. The documentation is in order.

There is no real estate transfer tax of 3%.

contact 00385951987708
Caractéristiques
Typologie
Appartement
Transaction
Vente
Superficie
120 m²
Bains/douches
3
Box, places stationnement
1 dans garage/box, 1 place(s) de parking
Informations sur les prix
Prix
€ 505 000
Prix au m²
4 208 €/m²
Efficacité énergétique
  • Certification énergétique

    Non classifiable
Découvrez chaque recoin de la propriété
+14
Options additionnelles

Contacter l'annonceur

Ou