Maison individuelle 126 m², neuve, Luka, Poreč

€ 530 000
5+
126 m²
3
Terrasse

Remarque

Annonce mise à jour le 14/03/2026
Description

This description has been translated automatically and may not be accurate

référence: 2469-1

Located in a quiet, green area of Poreč, just 2 kilometers from the city center and the beach, this modern semi-detached new-build house is for sale, with a total area of 126,34 m. Spread over three floors, it perfectly combines contemporary design, airy space, and a functional layout. Thanks to wide glass openings and a carefully planned floor plan, the house offers plenty of natural light and a feeling of comfort throughout the year.

Room Layout:
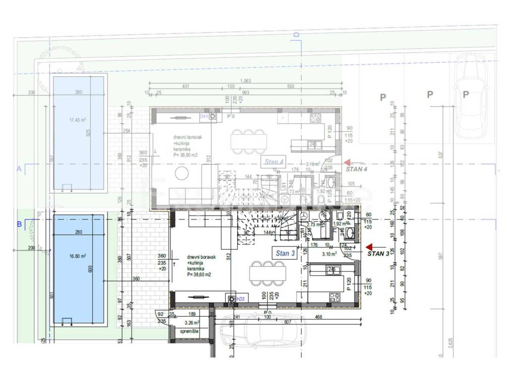
Ground floor: Entrance hall, open space concept of the living room, kitchen and dining area with access to a covered terrace and garden, guest toilet and two storage rooms.
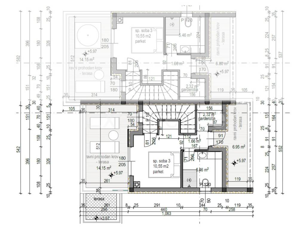
First floor: Two comfortable bedrooms, each with its own bathroom one of the bedrooms includes a walk-in wardrobe and access to the terrace (3.07 m), and a storage room.
Attic: Third bedroom with its own bathroom and walk-in wardrobe, as well as two terraces one facing west (14.15 m), perfect for enjoying sunsets, and the other facing east (6.95 m).

EXTERIOR
Outdoor enjoyment is enhanced by a private garden with a swimming pool of 16,80 m an ideal spot for summer refreshment and relaxation in the privacy of your own garden.

The house will be equipped with underfloor heating and air conditioning units that ensure a comfortable temperature throughout the year.

Planned completion of construction: June 2027.

Situated in a peaceful residential zone, this home offers privacy and tranquility, while being within walking distance of all essential amenities: grocery stores, restaurants, cafés, and more. The location offers the perfect balance between relaxed living and proximity to the city and sea.

Additional Benefits:
A well-known investor with many years of experience and recognizable quality projects,
The buyer does not pay real estate transfer tax in the amount of 3% of the purchase price,
The price includes VAT (25%).
Si vous voulez en savoir plus, vous pouvez parler à Patricija Simonetti.
Caractéristiques
Typologie
Maison individuelle
Transaction
Vente
Superficie
126 m²
Chambres/pièces
5+
Chambres
3
Bains/douches
3
Terrasse
Oui
Chauffage
Collectif
Informations sur les prix
Prix
€ 530 000
Prix au m²
4 206 €/m²
Efficacité énergétique
  • Année de construction

    2027
  • État

    Nouveau / En construction
  • Chauffage

    Collectif
  • Certification énergétique

    Non classifiable
Découvrez chaque recoin de la propriété
+8
Options additionnelles

Contacter l'annonceur

Ou