Terrain constructible en Vente

€ 250 000
727 m²

Remarque

Annonce mise à jour le 22/01/2026
Description

référence: 7205

Krk, okolica, Građevinski teren

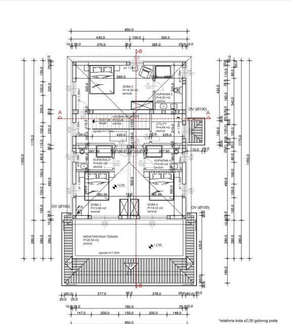
Na prodaju je građevinski teren udaljen svega 5 km od grada Krka. Uz parcelu dolazi i važeća građevinska dozvola za izgradnju samostojeće kuće s bazenom, tlocrtne površine 132 m² i ukupne bruto površine 198 m².

S terena se pruža pogled na more, što dodatno povećava atraktivnost ove nekretnine.

Za sve informacije i dogovor razgledavanja dostupni smo na broju 0994440660 ili u poslovnici Malinska na adresi Dubašljanska 111.

Provizija agencije za kupca iznosi 3% + PDV i plaća se u slučaju kupovine nekretnine kod zaključenja kupoprodajnog Ugovora.

ID CODE: 7205

Euro Immobilien d.o.o.
Mob: 00385 (0)99 444 0660
Tel: +385 51 220 024
E-mail: info@euro-immobilien.hr
www.euro-immobilien.hr
Caractéristiques
Transaction
Vente
Typologie
Terrain constructible
Superficie
727 m²
Informations sur les prix
Prix
€ 250 000
Prix au m²
344 €/m²
Plan
Découvrez chaque recoin de la propriété
+8
Options additionnelles

Contacter l'annonceur

Ou