1/9


Appartement 4 chambres Vodice, Vodice
€ 660 000
4
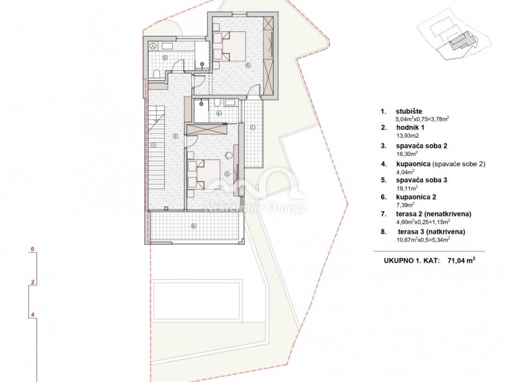
204 m²
3
2
Non
Balcon
Terrasse
Annonce mise à jour le 25/02/2026
Description
référence: SVD-003
ID CODE: SVD-003
Paolo Miškić
Viši savjetnik
Mob: +385 (0)99 210 2671
Tel: +385 (0)99 210 2671
E-mail: paolo@nekretnine-omega.hr
www.nekretnine-omega.hr
Caractéristiques
- Typologie
- Appartement
- Transaction
- Vente
- Étage
- 2 étage
- Ascenseur
- Non
- Superficie
- 204 m²
- Chambres/pièces
- 4
- Chambres
- 3
- Bains/douches
- 3
- Balcon
- Oui
- Terrasse
- Oui
- Box, places stationnement
- 1 place(s) de parking
- Chauffage
- Individuel, avec air
- Climatisation
- Autonome, froid/chaud
Informations sur les prix
- Prix
- € 660 000
- Prix au m²
- 3 235 €/m²
Efficacité énergétique
Découvrez chaque recoin de la propriété
Options additionnelles