Maison individuelle Ozalj, Ozalj

€ 197 000
3
102 m²
1
Non
Terrasse

Remarque

Annonce mise à jour le 22/01/2026
Description

This description has been translated automatically and may not be accurate

référence: 484

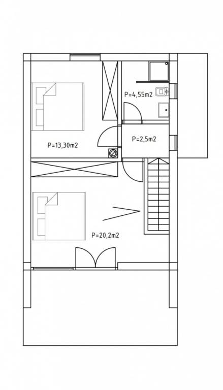
In a quiet location near Ozalj, a project for a modern family house has been developed that will combine contemporary design, top functionality and quality workmanship. This attractive property will be designed with clean lines, airy interiors and large glass surfaces that will allow for plenty of natural light and provide a beautiful, open view of the surrounding nature. The house will spread over two floors, carefully designed to provide maximum comfort and practicality. The ground floor will feature a spacious living room connected to the kitchen and dining room, ideal for family gatherings, with an additional guest toilet. The first floor will feature two spacious bedrooms and a modernly equipped bathroom. The 1,000 m² plot will provide enough space for outdoor relaxation, whether it is a garden, terrace or additional amenities according to the wishes of the future owners. Parking spaces have also been planned for additional convenience, while quality construction and the use of top-quality materials, including a ventilated facade clad in sheet metal, will guarantee durability and high energy efficiency. What makes this property special is the fact that it will be built of brick, which ensures stability and longevity. If you are looking for a modern home with beautiful views and enough space to enjoy a peaceful environment, this is a great opportunity. Construction will begin after the down payment, and there is also the possibility of adjusting the project as agreed.

Dear clients, the agency commission is charged in accordance with the General Terms and Conditions:
www.myadriatic.hr/opci-uvjeti-poslovanja

ID CODE: 484

Igor Popović
Mob: +385 91 500 8728
Tel: +385 91 500 8728
E-mail: info@myadriatic.hr
www.myadriatic.hr
Caractéristiques
Typologie
Maison individuelle
Transaction
Vente
Ascenseur
Non
Superficie
102 m²
Chambres/pièces
3
Chambres
2
Bains/douches
1
Balcon
Non
Terrasse
Oui
Informations sur les prix
Prix
€ 197 000
Prix au m²
1 931 €/m²
Efficacité énergétique
  • Certification énergétique

    Non classifiable
Plan
Découvrez chaque recoin de la propriété
+5
Options additionnelles

Contacter l'annonceur

Ou