Terrain constructible en Vente

€ 249 000
451 m²

Remarque

Annonce mise à jour le 27/01/2026
Description

référence: 115

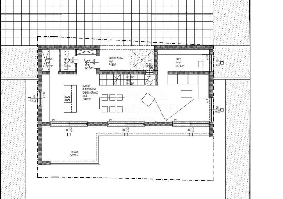
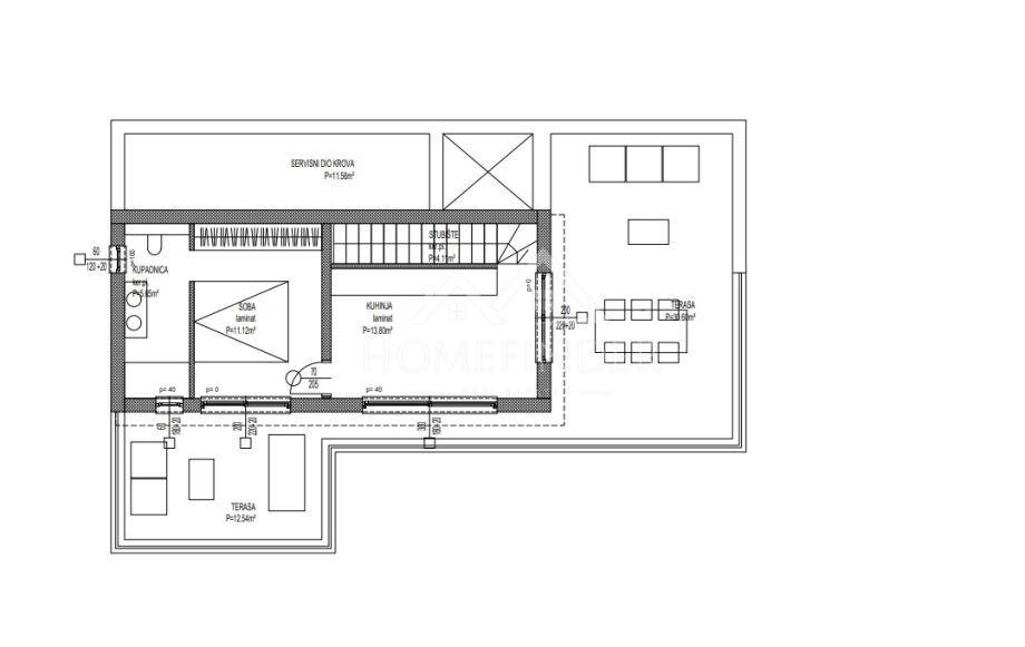
Prodaje se atraktivno građevinsko zemljište smješteno na prestižnoj lokaciji na otoku Čiovu, idealno za izgradnju luksuzne vile s četiri spavaće sobe. Zemljište pruža spektakularan panoramski pogled na otoke i prirodne ljepote Dalmacije, a njegova neposredna blizina Trogiru omogućava jednostavan pristup svim potrebnim sadržajima, dok istovremeno jamči privatnost i mir. More je udaljeno samo 400 m, što ovu lokaciju čini još atraktivnijom.

Ključne karakteristike:
- Površina zemljišta: 451 m²
- Građevinska dozvola: Izdana dozvola za izgradnju vile na tri etaže, uključujući bazen od 18 m²
- Projekt vile: 4 spavaće sobe, prostrani dnevni boravak s kuhinjom i blagovaonicom, terase s južnim i jugoistočnim orijentacijama, moderne
kupaonice, ured, praonica i ostave
- Komunalije: Priključak na kanalizaciju plaćen, komunalni doprinosi biti će plaćeni od strane prodavatelja

Zemljište je uredno 1/1, bez tereta, što omogućava brzu i sigurnu kupoprodaju. S obzirom na sve prednosti, ovo je izuzetna prilika za izgradnju vile na jednoj od najpoželjnijih lokacija na Jadranu.

ID CODE: 115

Borna Rezo
Suradnik u procesu obuke
Mob: 099 783 5832
E-mail: b.rezo@homefinder.hr
www.homefinder.hr
Caractéristiques
Transaction
Vente
Typologie
Terrain constructible
Superficie
451 m²
Informations sur les prix
Prix
€ 249 000
Prix au m²
552 €/m²
Découvrez chaque recoin de la propriété
+8
Options additionnelles

Contacter l'annonceur

Ou