1/9


Appartement 4 chambres Donja Jaska, Jastrebarsko, Jastrebarsko
€ 352 502
Annonce mise à jour le 10/02/2026
Description
référence: 694
ID CODE: 694
Centralno
Mob: +385 95 299 9996
E-mail: info@homefinder.hr
www.homefinder.hr
Caractéristiques
- Typologie
- Duplex
- Transaction
- Vente
- Ascenseur
- Non
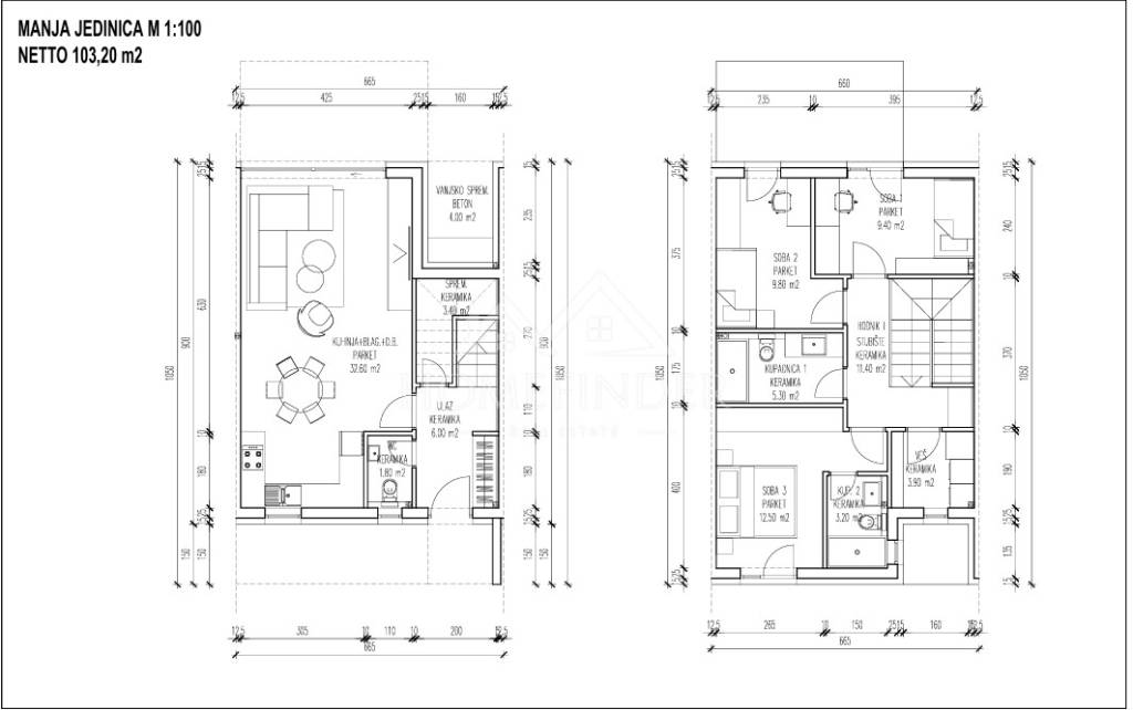
- Superficie
- 115 m²
- Chambres/pièces
- 4
- Chambres
- 3
- Bains/douches
- 1
- Balcon
- Non
- Terrasse
- Non
- Box, places stationnement
- 2 place(s) de parking
- Chauffage
- Individuel, avec air
- Climatisation
- Autonome, froid/chaud
Autres caractéristiques
Informations sur les prix
- Prix
- € 352 502
- Prix au m²
- 3 065 €/m²
Efficacité énergétique
Plan

Découvrez chaque recoin de la propriété
Options additionnelles