1/22


Maison jumelée / mitoyenne Pag, Pag
PagPag€ 300 000
Annonce mise à jour le 22/01/2026
Description
référence: 9978 K
ID CODE: 9978 K
Lider nekretnine otok Pag
Agent
Mob: + 385 95 505 0362
Tel: 051/211-800
E-mail: nekretnine-pag@lider.hr
www.lider.hr
Caractéristiques
- Typologie
- Maison jumelée / mitoyenne
- Transaction
- Vente
- Étages du bâtiment
- 1
- Ascenseur
- Non
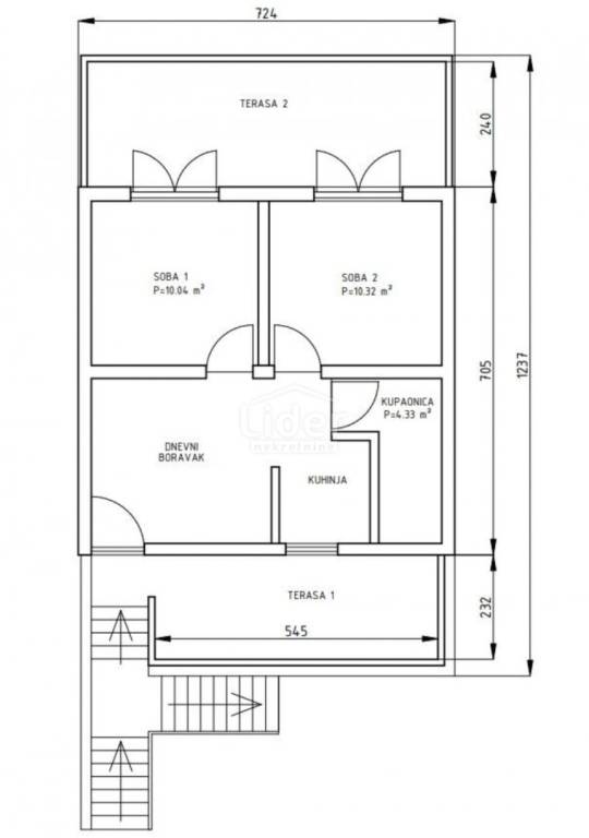
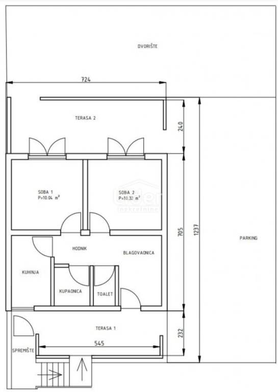
- Superficie
- 100 m²
- Chambres/pièces
- 5
- Chambres
- 4
- Bains/douches
- 2
- Balcon
- Non
- Terrasse
- Oui
- Box, places stationnement
- 3 place(s) de parking
- Chauffage
- Individuel, avec air
- Climatisation
- Autonome, froid/chaud
Informations sur les prix
- Prix
- € 300 000
- Prix au m²
- 3 000 €/m²
Efficacité énergétique
Découvrez chaque recoin de la propriété
Options additionnelles