Maison individuelle Tinjan, Tinjan

€ 185 000
3
82 m²
2
Non
Terrasse

Remarque

Annonce mise à jour le 21/04/2026
Description

This description has been translated automatically and may not be accurate

référence: 1951

For Sale: Detached Traditional Istrian Stone House – 82 m², Land 173 m²

Charming detached traditional Istrian stone house of 82 m² is for sale, situated on a 173 m² plot. The property is in the midst of renovation started by the current owners and is being sold in its current state.

Key construction works completed:

Reinforced concrete floor slab

RC intermediate floor structure

Completely new wooden roof structure with insulation and Mediterranean tile finishing

The first phase of plumbing and electrical installations has been carried out. The property has water and electricity connections, and a valid building permit has been issued, allowing immediate continuation of works.

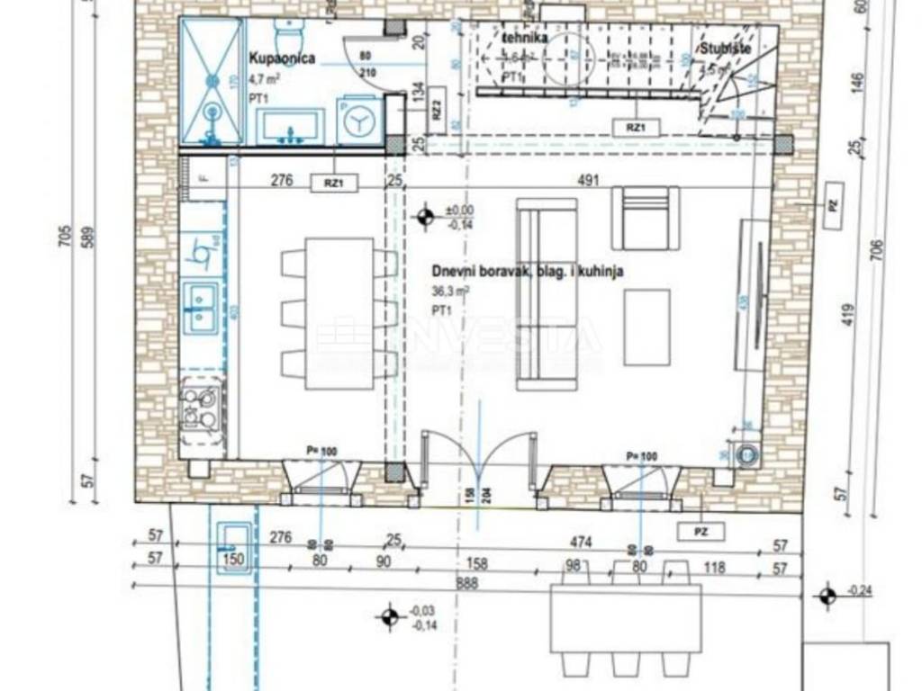
House layout:

Ground floor: kitchen with dining area, living room, bathroom

First floor: two bedrooms, bathroom

One parking space is provided within the yard.

This property is an excellent opportunity for those looking for a holiday home or a young family seeking a peaceful and authentic environment. The location is very convenient – the town center is just a two-minute drive or a ten-minute walk, with all necessary everyday amenities.

A property definitely worth visiting!

ID CODE: 1951

Aleksandar Bruić
Mob: +385 98 192 7301
Tel: +385 52 33 00 55
E-mail: sandro@investa.hr
www.investa.hr
Caractéristiques
Typologie
Maison individuelle
Transaction
Vente
Étages du bâtiment
1
Ascenseur
Non
Superficie
82 m²
Chambres/pièces
3
Chambres
2
Bains/douches
2
Balcon
Non
Terrasse
Oui
Box, places stationnement
1 place(s) de parking
Informations sur les prix
Prix
€ 185 000
Prix au m²
2 256 €/m²
Efficacité énergétique
  • Année de construction

    1968
  • Certification énergétique

    Non classifiable
Découvrez chaque recoin de la propriété
+16
Options additionnelles

Contacter l'annonceur

Ou