Terrain constructible en Vente

€ 169 000
616 m²

Remarque

Annonce mise à jour le 31/03/2026
Description

référence: 7004

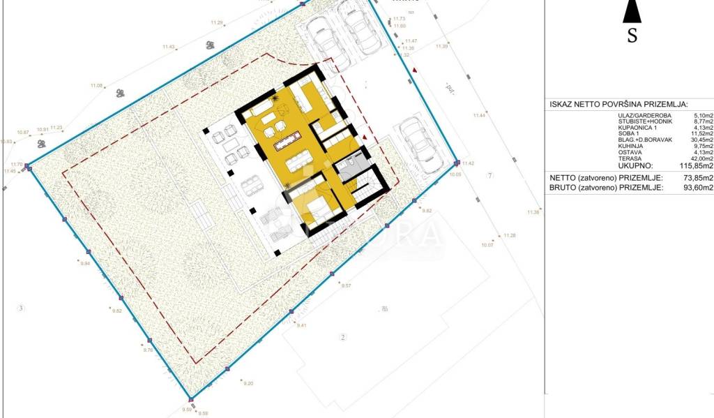
Tribunj, građevinsko zemljište površine 616m2; Prema urbanističkom planu općine Tribunj, zemljište je smješteno u zoni M1 – 6b. Parcela je pravilnog pravokutnog oblika dimenzije 17,50m širine uz prilazni put, i 29m dužine. U tijeku je ishođenje građevinske dozvole za obiteljsku kuću površine 227,75 m2 bruto površine. Zemljište je većim dijelom ograđeno betonskim zidom, pod manjim je nagibom i ima ucrtan javni prilazni put. Kompletna infrastruktura se nalazi do terena. Udaljenost do mora / plaže je 450 m, a do centra 500 m.
MOGUĆNOST GRADNJE Obiteljske građevine
* način gradnje: SS i D;
* PMin. 350 m2 za SS način gradnje;
* PMax. 1.000 m2 za SS način gradnje;
* Šmin (SS) = 14m;
* PMin. =250 m2 za D način gradnje;
* PMax. =420 m2 za D način gradnje;
* Šmin. (D)= 10 m;
* Šmax. (D)= 16 m;

ID CODE: 7004

Milica Štrkalj
Agent s licencom
Mob: +385 95 342 5722
E-mail: milica@litora-nekretnine.hr
www.litora-nekretnine.hr

Dijana Banović
Agent s licencom
Mob: +385 98 192 6220
E-mail: dijana@litora-nekretnine.hr
www.litora-nekretnine.hr

Divna Bulat
Agent s licencom
Mob: +385 91 6367 574
E-mail: divna@litora-nekretnine.hr
www.litora-nekretnine.hr
Caractéristiques
Transaction
Vente
Typologie
Terrain constructible
Superficie
616 m²
Informations sur les prix
Prix
€ 169 000
Prix au m²
274 €/m²
Plan
Découvrez chaque recoin de la propriété
+15
Options additionnelles

Contacter l'annonceur

Ou