Maison individuelle Crikvenica, Centar, Crikvenica

€ 940 000
5
186 m²
3
Non
Terrasse

Remarque

Annonce mise à jour le 22/01/2026
Description

This description has been translated automatically and may not be accurate

référence: 9903 K

CRIKVENICA - NEW IN OUR OFFER!
A new, modern villa of 186 m2 with swimming pool, in an excellent location with a unique, open sea view.
This extremely attractive property is currently under construction, and given the reliability of the investor, its new owner will enjoy high quality construction and equipment: Security doors, excellent carpentry work with mosquito nets and electric blinds, top quality Italian ceramics, underfloor heating, air conditioning in all rooms, LED lighting...
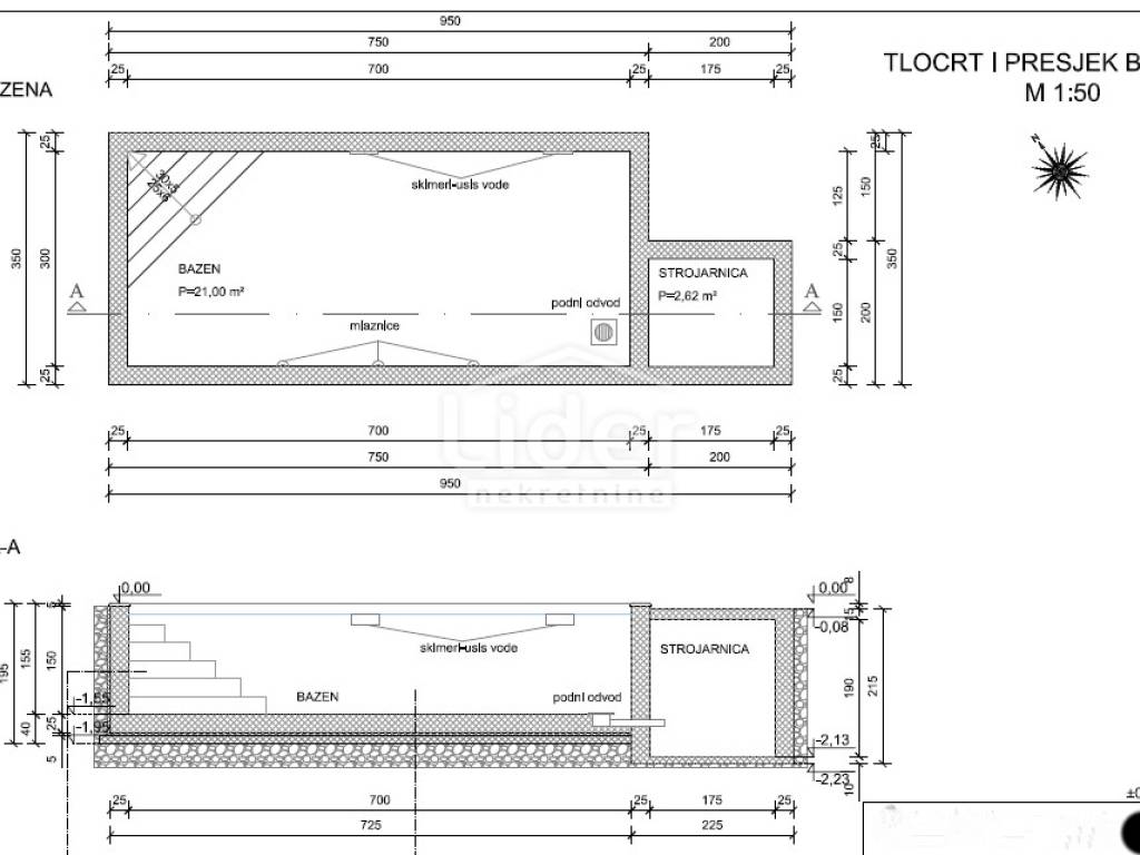
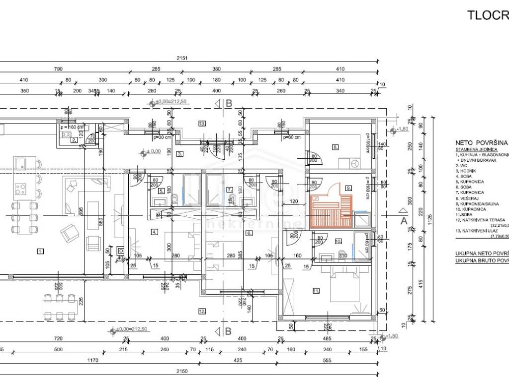
The living area consists of an open space consisting of a living room, kitchen and dining room, as well as three spacious bedrooms, each of which has its own bathroom, separate toilet, laundry room and sauna with shower. All rooms have direct access to the 550 m2 garden, where there is a 21 m2 swimming pool, a whirlpool, a sunbathing area and a 50 m2 covered terrace with a barbecue and summer kitchen. A true little paradise for lovers of outdoor living with a beautiful view of the sea and the the surrounding nature.
Two parking spaces are available in the fenced courtyard, which can be covered if the new owner wishes.
An ideal solution for people looking for a vacation in an extremely quiet environment, close to Crikvenica, but also for a successful tourist rental.
For any further information and viewing organization, please contact the Real Estate Agent at +385 91 5676553 or by e-mail on: astrid.pavesic@lider.hr

ID CODE: 9903 K

Astrid Pavešić
Agent s licencom
Mob: +385 91 567 6553
Tel: +385 51 211 800
E-mail: astrid.pavesic@lider.hr
www.lider.hr
Caractéristiques
Typologie
Maison individuelle
Transaction
Vente
Ascenseur
Non
Superficie
186 m²
Chambres/pièces
5
Chambres
3
Bains/douches
3
Balcon
Non
Terrasse
Oui
Box, places stationnement
2 place(s) de parking
Climatisation
Autonome, froid/chaud
Autres caractéristiques
  • Porte blindée
Informations sur les prix
Prix
€ 940 000
Prix au m²
5 054 €/m²
Efficacité énergétique
  • Année de construction

    2025
  • Climatisation

    Autonome, froid/chaud
  • Certification énergétique

    Non classifiable
Découvrez chaque recoin de la propriété
+18
Options additionnelles

Contacter l'annonceur

Ou