Appartement 4 chambres Vodice, Vodice

€ 550 000
4
213 m²
2
0
Non
Terrasse

Remarque

Annonce mise à jour le 08/05/2026
Description

This description has been translated automatically and may not be accurate

référence: AV-1233

NEW CONSTRUCTION
Multi-storey apartment for sale in Vodice with swimming pool

The apartment is located in a house with two apartments.
APARTMENT S1
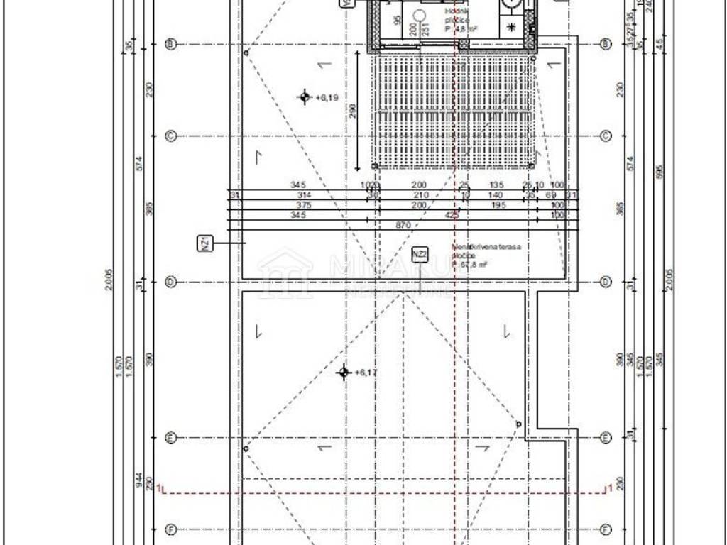
It consists of a ground floor, first and second floor.
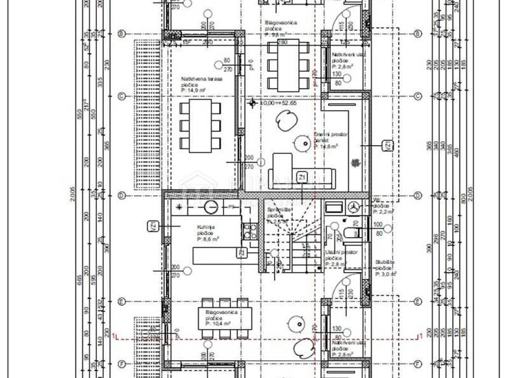
GROUND FLOOR
It consists of a dining room, living room, kitchen, covered entrance, storage room, staircase, entrance area and toilet.
There is also a swimming pool on the ground floor.

FIRST FLOOR
It consists of a hallway, two bathrooms, three bedrooms, staircase, covered terrace.

SECOND FLOOR
It consists of a hallway, staircase, toilet.

ABOUT THE PROJECT:
It has PVC joinery, electric shutters, mosquito nets, underfloor heating in the living room, bathrooms and hallway. Air conditioning in the bedrooms and living room. The pool will be covered with foil.

The ad uses renderings and the actual condition may not match what is shown in the 3D photo.

Parking: 2 parking spaces.
Distance from the sea: 965m

ID CODE: AV-1233

Mirakul Adria
Mob: +385 91 150 5210 Philipp Drescher (DE, EN, HR)
Tel: +385 22 438 023 (DE, EN, HU, HR)
E-mail: mirakul@mirakul-adria.hr
http://mirakul-adria.hr
Caractéristiques
Typologie
Appartement
Transaction
Vente
Étage
Rez-de-chaussée
Étages du bâtiment
2
Ascenseur
Non
Superficie
213 m²
Chambres/pièces
4
Chambres
3
Bains/douches
2
Balcon
Non
Terrasse
Oui
Box, places stationnement
2 place(s) de parking
Chauffage
Individuel, avec air
Climatisation
Autonome, froid/chaud
Informations sur les prix
Prix
€ 550 000
Prix au m²
2 582 €/m²
Efficacité énergétique
  • Chauffage

    Individuel, avec air
  • Climatisation

    Autonome, froid/chaud
  • Certification énergétique

    Non classifiable
Découvrez chaque recoin de la propriété
+26
Options additionnelles

Contacter l'annonceur

Ou