Maison individuelle Krk, Centar, Krk

€ 1 500 000
5
238 m²
3+
Non
Terrasse

Remarque

Annonce mise à jour le 06/02/2026
Description

This description has been translated automatically and may not be accurate

référence: 4319

Surroundings of the city of Krk, for sale, imposing villa with a swimming pool, in a quiet location, on the edge of the construction zone, under construction!

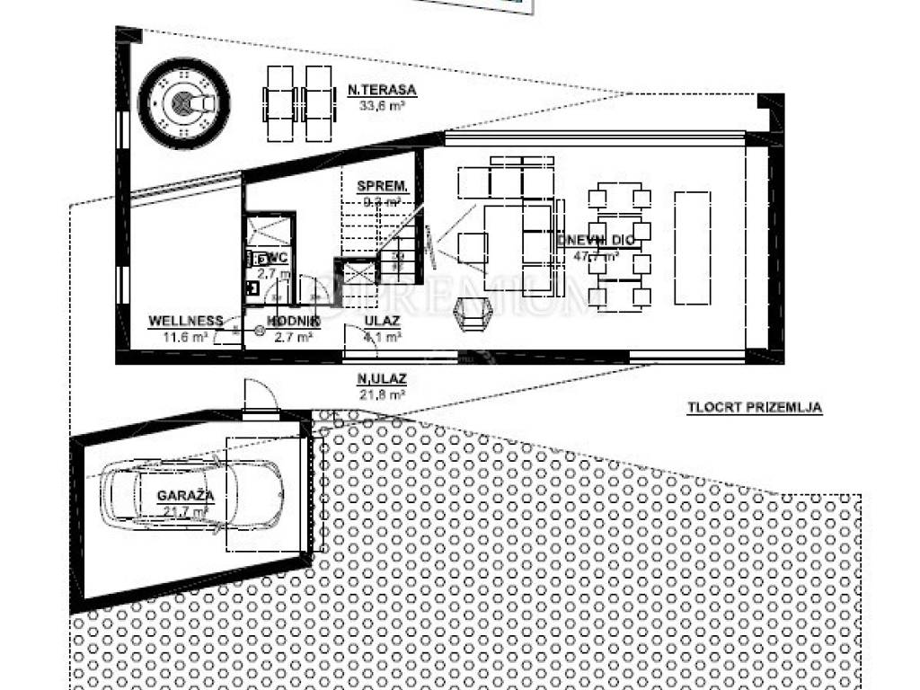
The villa with an area of 238 m2 consists of a ground floor and a first floor, connected by an internal staircase.
On the ground floor of the house, there is an entrance area, corridor, storage room, wellness, open space kitchen with dining room, and living room, with access to the garden with a heated swimming pool, and sun deck.
The first floor consists of a hallway, four bathrooms, and four bedrooms, three of which have access to a terrace with a beautiful view of the green area.

The house will be equipped with video surveillance, an alarm system, a heat pump, security doors, high-quality floor coverings, aluminum joinery, and fully air-conditioned.
There is also a garage for parking one car and an outdoor parking space on the garden plot.

Quiet location, ideal for vacation, on the edge of the construction zone!

Turnkey sale, expected completion of works spring 2025.
The property is subject to the VAT system, therefore the buyer does not pay the real estate transfer tax of 3 %.

ID CODE: 4319

Premium nekretnine Malinska
Mob: +385915474709
Tel: +38551858364
E-mail: info@premium-nekretnine.com
Caractéristiques
Typologie
Maison individuelle
Transaction
Vente
Étages du bâtiment
1
Ascenseur
Non
Superficie
238 m²
Chambres/pièces
5
Chambres
4
Bains/douches
3+
Balcon
Non
Terrasse
Oui
Box, places stationnement
1 dans garage/box, 2 place(s) de parking
Chauffage
Individuel, avec air
Climatisation
Autonome, froid/chaud
Autres caractéristiques
  • Porte blindée
  • Système d'alarme
Informations sur les prix
Prix
€ 1 500 000
Prix au m²
6 303 €/m²
Efficacité énergétique
  • Année de construction

    2025
  • Chauffage

    Individuel, avec air
  • Climatisation

    Autonome, froid/chaud
  • Certification énergétique

    Non classifiable
Découvrez chaque recoin de la propriété
+18
Options additionnelles

Contacter l'annonceur

Ou