Maison jumelée / mitoyenne Krk, Centar, Krk

€ 650 000
5
158 m²
3+
Non
Terrasse

Remarque

Annonce mise à jour le 28/04/2026
Description

This description has been translated automatically and may not be accurate

référence: 4374

Krk, surroundings, modern semi-detached house for sale, with a swimming pool and an open sea view!

The house is currently under construction, the expected completion date is the summer of 2026.
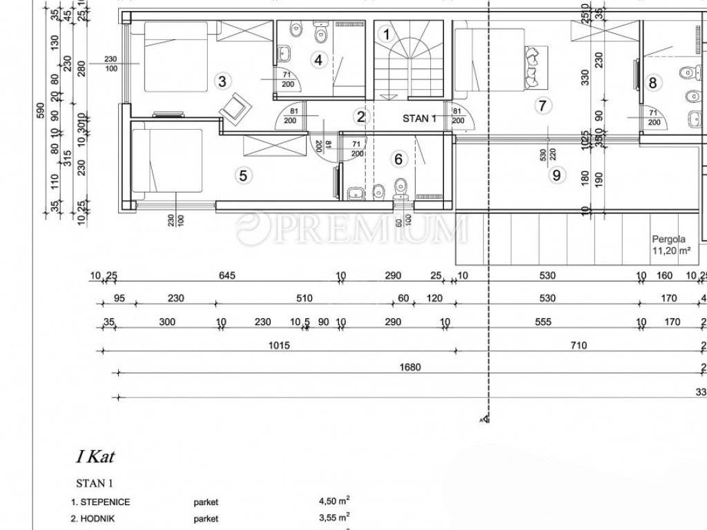
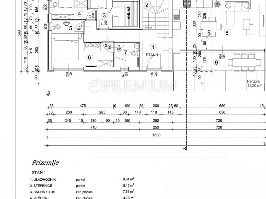
The total area is 158 m2, it consists of the ground floor and the first floor, interconnected by an internal staircase.
The first floor has an area of ​​78 m2, and consists of a hallway, and three bedrooms, each with its own bathroom, one of which has an exit to the loggia.
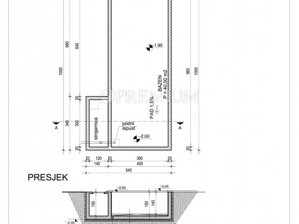
The ground floor, with an area of ​​80 m2, consists of an entrance area, a bedroom with a bathroom, a laundry room, a sauna with a shower, and an open space kitchen with a dining room and a living room, with an exit to the loggia, and a garden with a swimming pool (10 x 4 m ) with a sun deck, and a barbecue.
Two parking spaces!

High-quality materials and equipment are used for construction, so the house will be equipped with underfloor heating, PVC carpentry, burglar-proof doors, and air conditioners in all rooms.

Quiet location, 1000 m from the sea!
Sale according to the "turnkey" system.
VAT is included in the price, the buyer does not pay real estate sales tax!

ID CODE: 4374

Premium nekretnine Malinska
Mob: +385915474709
Tel: +38551858364
E-mail: info@premium-nekretnine.com
Caractéristiques
Typologie
Maison jumelée / mitoyenne
Transaction
Vente
Étages du bâtiment
1
Ascenseur
Non
Superficie
158 m²
Chambres/pièces
5
Chambres
4
Bains/douches
3+
Balcon
Non
Terrasse
Oui
Box, places stationnement
2 place(s) de parking
Chauffage
Individuel, avec air
Climatisation
Autonome, froid/chaud
Autres caractéristiques
  • Porte blindée
Informations sur les prix
Prix
€ 650 000
Prix au m²
4 114 €/m²
Efficacité énergétique
  • Année de construction

    2026
  • Chauffage

    Individuel, avec air
  • Climatisation

    Autonome, froid/chaud
  • Certification énergétique

    Non classifiable
Découvrez chaque recoin de la propriété
+21
Options additionnelles

Contacter l'annonceur

Ou