Terrain constructible en Vente

€ 1 350 000
1 256 m²

Remarque

Annonce mise à jour le 22/01/2026
Description

référence: E2916

Rijeka, Bivio, zemljište za zgradu s pet stanova s građevinskom dozvolom

Građevinsko zemljište ukupne površine 1.256 m2 s građevinskom dozvolom za građenje zgrade stambene namjene Po+P+2, zgrade s pet stanova.

Radovi započeli u 2023. godini i do sada je izgrađen potporni zid dužine 40 m i izvedeni su radovi na iskopu za bazen (budućem investitoru bazen nije obvezan) , a bazen bi se nalazio iza zgrade.

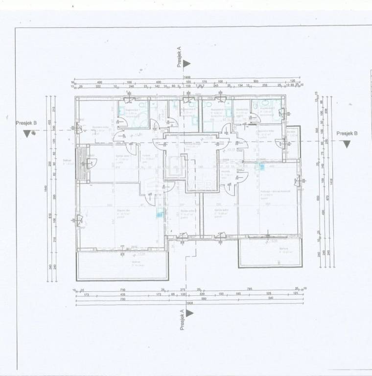
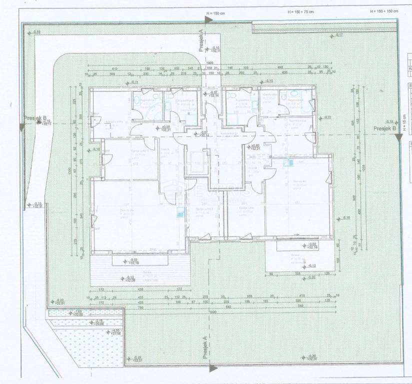
Površine stanova po projektu, su slijedeće:
▪ PRIZEMLJE
- stan 1, 3S+DB, korisne neto površine 95 m2, pripadak stana 215 m2 ( s koef. 42 m2 ), obračunska površina s koeficijentima 137 m2
- stan 2, 2S+DB, korisne neto površine 72 m2, pripadak stana 309 m2 ( s koef. 49 m2 ), obračunska površina s koeficijentima 121 m2

▪ PRVI KAT
- stan 3, 3S+DB, korisne neto površine 99 m2, pripadak stana 49 m2 ( s koef. 23 m2 ), obračunska površina s koeficijentima 127 m2
- stan 4, 2S+DB, korisne neto površine 72 m2, pripadak stana 46 m2 ( s koef. 22 m2 ), obračunska površina s koeficijentima 94 m2

▪ DRUGI KAT
- stan 5, 3S+DB, korisne neto površine 105 m2, pripadak stana 139 m2 ( s koef. 53 m2 ), obračunska površina s koeficijentima 158 m2

U naravi se prodaje tvrtka koja je otvorena isključivo radi kupovine istog zemljišta. Cijena se odnosi na kupnju tvrtke u čijem je vlasništvu zemljište, odnosno prenosi se 100 % poslovnih udjela društva na drugu osobu.

Buduća izgrađena nekretnina imala bi panoramski otvoreni pogled na more, cijeli Kvarnerski zaljev i otoke čak iz prizemlja.

Za više dodatnih informacija slobodno nas kontaktirajte.

Poštovani klijenti, agencijska provizija naplaćuje se u skladu s Općim uvjetima poslovanja
EVERIS REAL ESTATE, koje možete preuzeti na našoj web stranici https://nekretnine.everis.hr/o-nama/opci-uvjeti-poslovanja

ID CODE: E2916

Marin Modić
Agent s licencom
Mob: +385 (91) 5954 045
Tel: +385 (0)91 5954 045
E-mail: m.modic@everis.hr
https://nekretnine.everis.hr/
Caractéristiques
Transaction
Vente
Typologie
Terrain constructible
Superficie
1 256 m²
Informations sur les prix
Prix
€ 1 350 000
Prix au m²
1 075 €/m²
Plan
Découvrez chaque recoin de la propriété
+12
Options additionnelles

Contacter l'annonceur

Ou