Maison individuelle Krk, Centar, Krk

€ 850 000
4
110 m²
3
Non
Terrasse

Remarque

Annonce mise à jour le 06/02/2026
Description

This description has been translated automatically and may not be accurate

référence: 3817

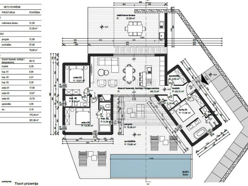
In the vicinity of Krk, a modern detached single-story house with a beautiful sea view is for sale.
The house has a net living area of 110m2 and is situated on a plot of 700m2.
The central part of the property features a spacious living room, kitchen, and dining area with access to a covered terrace on one side, and on the other side, an exit to the sunbathing area and pool (10x3). On the right side of the house, there's a room with its own bathroom, toilet, and storage. On the left side, there are 2 bedrooms, each with its own bathroom. The house is characterized by a modern design, functional room layout, and high-quality construction and equipment (e.g., security doors, PVC windows and doors, air conditioning units, high-quality sanitary ware, ceramic floor coverings).

It's located in an exceptionally quiet area offering privacy and a peaceful ambiance, 2000m from the sea.

ID CODE: 3817

Premium nekretnine Malinska
Mob: +385915474709
Tel: +38551858364
E-mail: info@premium-nekretnine.com
Caractéristiques
Typologie
Maison individuelle
Transaction
Vente
Ascenseur
Non
Superficie
110 m²
Chambres/pièces
4
Chambres
3
Bains/douches
3
Balcon
Non
Terrasse
Oui
Box, places stationnement
2 place(s) de parking
Chauffage
Individuel, avec air
Climatisation
Autonome, froid/chaud
Autres caractéristiques
  • Porte blindée
Informations sur les prix
Prix
€ 850 000
Prix au m²
7 727 €/m²
Efficacité énergétique
  • Année de construction

    2022
  • Chauffage

    Individuel, avec air
  • Climatisation

    Autonome, froid/chaud
  • Certification énergétique

    Non classifiable
Découvrez chaque recoin de la propriété
+15
Options additionnelles

Contacter l'annonceur

Ou